Vuokrataan liiketilat - Helsinki

Leonkatu 21, Kalasatama, 00540 Helsinki #10797562

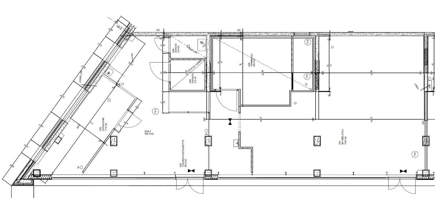
Vapaa myymälätila näyttävine ikkunoineen heti vapaa vuokrattavaksi.

Myymälä sijaitsee Kalasataman rantakadulla, vilkkaalla kulkuväylällä Capellan puistotien puolella meren rannalla. Varustuksiin kuuluu kylmä- ja pakastinhuoneet (jäähdytinlaitteet poistettu) mm. maito ja pakastetuotteiden varastointia varten. Lisäksi tilassa valmiina oma jätehuone. Takatilassa varastotilaa sekä valmius esim. paistopisteelle. Lisäksi löytyy henkilökunnan sosiaalitilat suihkuineen sekä tekniset tilat.

Tila on helposti muunneltavissa moneen toimintaan.

Ota yhteyttä ja sovitaan esittely!

Osoite
Leonkatu 21, 00540 Helsinki
Tilatyyppi
Liiketilaa
372 m2
Tilajako
Jaettavissa
Jaettavissa kahdeksi n. 200m2 tilaksi
Vuokra
kysy hintaa
Vapautuu
Heti

Katutasossa

Jaettavissa

Ota yhteyttä

Lumo Kodit Oy

Pyydä lisätietoa

Kohteesta Leonkatu 21, Helsinki

 

B2B palvelut

MARKKINOINTI

Tavoita oikea kohderyhmä!

LASTAUSRATKAISUT

Mainos
Lastauksien ratkaisut tehokkaammin ja turvallisemmin