Vuokrataan liiketilat - Helsinki

Saariniemenkatu 6, Hakaniemi, 00530 Helsinki #10797536

Harvoin tarjolla! Keskeisellä paikalla hyvien kulkuyhteyksien varrella katutason liiketila vapaana

Hakaniemen torin kupeessa heti vuokrattavissa katutason liiketila näyttävine ikkunoineen.

Historiallinen talo on kokenut muutama vuosi sitten muutoksen, kun osa toimistoista rakennettiin asunnoiksi. Taloyhtiön suojaisalla sisäpihalla voi käydä nauttimassa vaikka aamukahvit.

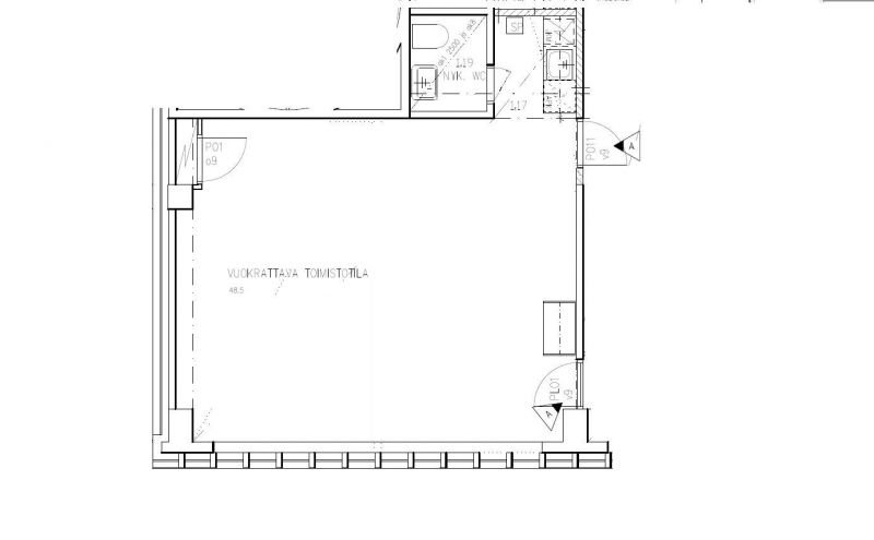
Tilat soveltuvat loistavasti esimerkiksi toimisto- tai työtilaksi.

Kohde on haettu arvonlisäverolliseksi.

Tila ei sovellu ravintola- tai kahvilakäyttöön.

Mikäli olet kiinnostunut, niin ota yhteyttä ja sovitaan esittely!

Osoite
Saariniemenkatu 6, 00530 Helsinki
Tilatyyppi
Liiketilaa
48 m2
Vuokra
995
Vapautuu
Heti

Katutasossa

Ota yhteyttä

Lumo Kodit Oy

Pyydä lisätietoa

Kohteesta Saariniemenkatu 6, Helsinki

 

B2B palvelut

LASTAUSRATKAISUT

Mainos
Lastauksien ratkaisut tehokkaammin ja turvallisemmin

MARKKINOINTI

Tavoita oikea kohderyhmä!