Vuokrataan liiketilat - Helsinki

Vanha Helsingintie 20, Malmi, 00700 Helsinki #10797528

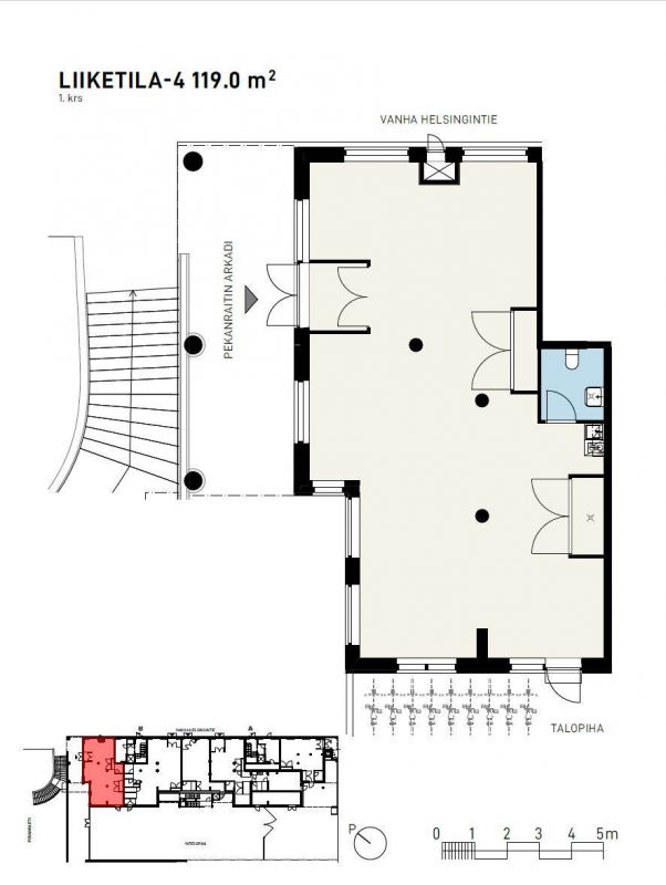
Vapaana katutason kulmatila, jossa ikkunat kolmeen eri suuntaan

Aivan Malmin juna-aseman kupeeseen on juuri valmistunut uudiskohde, jossa vuokrattavana katutason liiketiloja. Tämä kulmahuoneisto soveltuu erinomaisesti myymäläksi tai toimistoksi.

Sopimus tulee tehdä arvonlisäverollisena eli vuokraan lisätään alv.

Tila ei sovellu ravintolakäyttöön.

Ota yhteyttä ja sovitaan esittely!

Osoite
Vanha Helsingintie 20, 00700 Helsinki
Tilatyyppi
Liiketilaa
119 m2
Vuokra
Kysy hintaa
Vapautuu
Heti

Katutasossa

Ota yhteyttä

Lumo Kodit Oy

Pyydä lisätietoa

Kohteesta Vanha Helsingintie 20, Helsinki

 

B2B palvelut

LASTAUSRATKAISUT

Mainos
Lastauksien ratkaisut tehokkaammin ja turvallisemmin

MARKKINOINTI

Tavoita oikea kohderyhmä!