Vuokrataan toimistotilat - Helsinki
Köydenpunojankatu 2, Kamppi, 00180 Helsinki #10797475
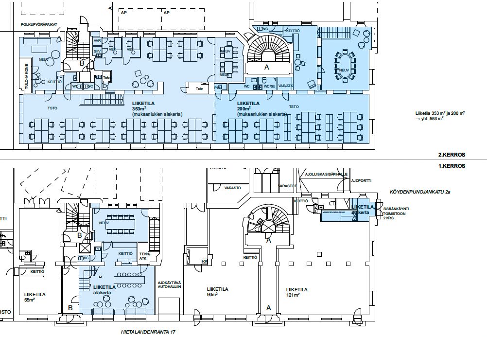
Avaraa toimistotilaa Hietalahdessa.
Kyseinen 553m2 toimistotila jakautuu kiinteistön 1. ja 2. kerrokseen. Tilasta 353 m² sijaitsee toisessa kerroksessa, ja sieltä on esteetön merinäköala. 200 m² sijoittuu ensimmäiseen kerrokseen. Tila voidaan vuokrata yhtenä kokonaisuutena tai jaettuna. Tila on modernia monitilatoimistoa, ja siihen kuuluu avotilan lisäksi yksittäisiä työ-/neuvotteluhuoneita. Lisäksi toimistossa on taukokeittiötiloja, wc-tilat ja suihku. Koneellinen ilmanvaihto. Sähkö kulutuksen mukaan. Tilaan on kaksi sisäänkäyntiä.
Köydenpunojankatu 2 on toimistokiinteistö, joka on aikoinaan toiminut teollisuuskiinteistönä. Se on saneerattu toimistotilakäyttöön ja sen toimitilat ovat persoonallisia. Kiinteistö sijaitsee Hietalahden torin vieressä ja siitä on hyvät kulkuyhteydet joka suuntaan. Ympärillä myös Hietalahden alueen palvelut. Keskustan palvelut ovat lyhyen matkan päässä.
Kysy lisää numerosta 044 723 4700 tai info@bref.fi. Palvelumme on tilanhakijoille ilmainen.
Bureau Real Estate Finland Oy
Lars Sonckin kaari 16, 02600 Espoo
Näytä puhelinnumero
0447234700
Bureau Real Estate Finland Oy
https://www.bref.fi