Vuokrataan toimistotilat - Helsinki
Köydenpunojankatu 2, Kamppi, 00180 Helsinki #10797474
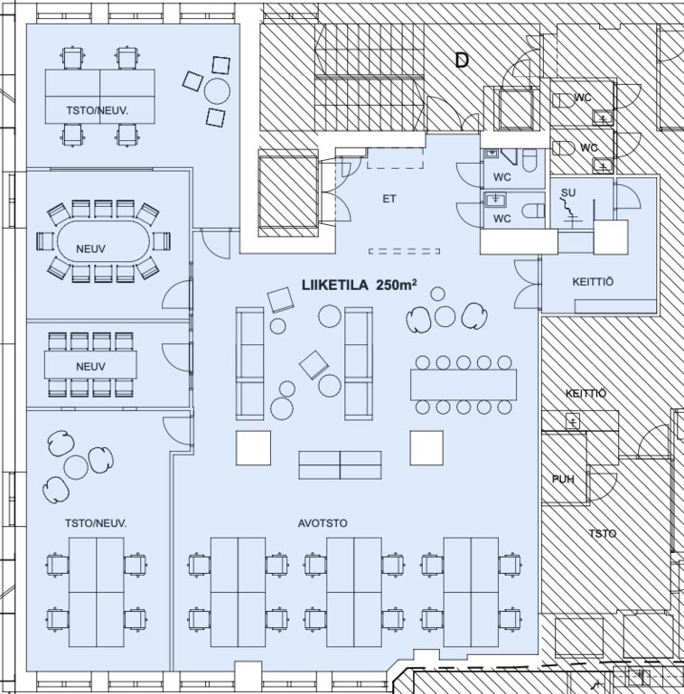
Avaraa toimistotila Hietalahdessa.
Tämä 250 m² toimistotila sijaitsee kiinteistön 5. kerroksessa. Toimistossa on avotilaa sekä yksittäisiä työ-/neuvotteluhuoneita, taukotila sekä omat wc-tilat ja suihku. Koneellinen poistoilmanvaihto. Sähkö kulutuksen mukaan.
Köydenpunojankatu 2 on toimistokiinteistö, joka on aikoinaan toiminut teollisuuskiinteistönä. Se on saneerattu toimistotilakäyttöön ja sen toimitilat ovat persoonallisia. Kiinteistö sijaitsee Hietalahden torin vieressä ja siitä on hyvät kulkuyhteydet joka suuntaan. Ympärillä myös Hietalahden alueen palvelut. Keskustan palvelut ovat lyhyen matkan päässä.
Kysy lisää numerosta 044 723 4700 tai info@bref.fi. Palvelumme on tilanhakijoille ilmainen.
Bureau Real Estate Finland Oy
Lars Sonckin kaari 16, 02600 Espoo
Näytä puhelinnumero
0447234700
Bureau Real Estate Finland Oy
https://www.bref.fi