Vuokrataan toimistotilat - Helsinki
Köydenpunojankatu 2, Kamppi, 00180 Helsinki #10797446
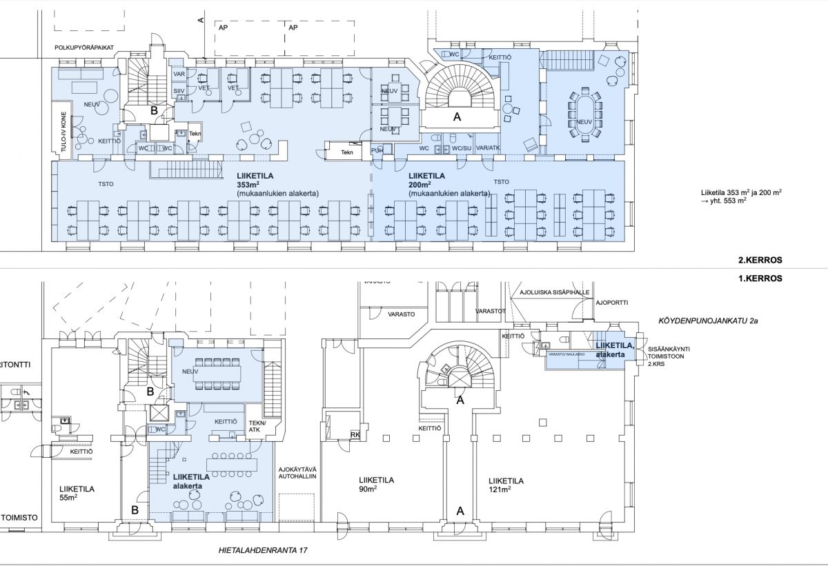
Vuokrataan upea toimistotila, josta esteetön merinäköala. 2.kerroksen toimistossa on valoisaa ja avonaista monitilatoimistoa, yksittäisiä huoneita, neuvottelutiloja, wc:t, suihku ja avarat taukokeittiö tilat. tilassa koneellinen ilmanvaihto viilennyksellä.
Köydenpunojankatu 2 on vanha teollisuuskiinteistö Hietalahden torin ja meren vieressä. Talo on nykyään toimistokäytössä ja kiinteistön tiloissa tulee hienosti esiin talon historia. Alueella on monipuolinen ravintolatarjonta ja hyvät julkisen liikenteen yhteydet.
Lisätietoja soita 020 730 4530 tai info@repoint.fi. Palvelumme on tilanhakijalle ilmainen.
Repoint Toimitilat Oy
Itälahdenkatu 22 B, 00210 Helsinki
Näytä puhelinnumero
020 730 4530
Lisätietoja soita Näytä puhelinnumero 020 730 4530 tai info@repoint.fi
https://repoint.fi/