Vuokrataan toimistotilat, muut tilat - Espoo
Life Science Center Keilaniemi, Keilaranta 10-18, Keilaniemi, 02150 Espoo #10797417
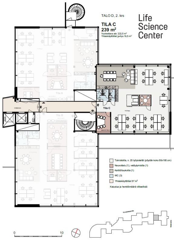
Korkeatasoinen 225,5 m² toimistotila Espoossa, meren ja pääväylien tuntumassa, menestyvien teknologiayritysten läheisyydessä.
Avarassa tilassa on hyvin käytetyt neliöt ja merinäköala. Lisäksi tilassa on oma käytännöllinen keittiönurkkaus.
Ilmoituksen sisäkuvat ovat yleiskuvia kiinteistön eri tiloista.
Life Science Center sijaitsee kehittyvän Keilanimen ytimessä. Se on Suomen merkittävin biotiede- ja teknologiayrityskeskittymä, joka tarjoaa modernin työympäristön 1200 kansainvälisen tason huippuosaajalle eri biotiede- ja teknologiayrityksessä. Keilaniemi on entisestään kehittyvä alue, jossa yhdistyvät monipuoliset palvelut, luonto, meri ja virkistysmahdollisuudet.
Keilaniemeen on helppo saapua sekä henkilöautolla, että julkisilla kulkuvälineillä. Kehä I:n ja Länsiväylän liittymät ovat lähes vieressä. Bussipysäkit sekä Keilaniemen metroasema ovat lyhyen kävelymatkan päässä ja tuleva Raide-Jokeri kulkee valmistuttuaan aivan vierestä.
Ensiluokkaisten ravintola-, catering- ja aulapalveluiden sekä nykyaikaisten ja valoisien kokous- ja edustustilojen lisäksi meiltä löytyy myös sisätiloissa oleva auto- ja pyörähalli, autopesula, hammaslääkäri, työterveyspiste, hieroja, pesula, kuntosali sekä sen yhteydessä oleva Recovery Studio ja runsaasti suihkutiloja.
LSC:lle on myönnetty BREEAM-ympäristösertifikaatti. BREEAM-ympäristösertifikaatti (Building Research Establishment’s Environmental Assessment Method) on yksi Euroopan luotetuimmista ympäristösertifikaateista ja erinomainen työkalu kestävän kehityksen ylläpitoon ja energiankulutuksen tarkkailuun
Näkyvällä paikalla
Hissi
ScanReal Oy LKV
Opus Business Park
Hitsaajankatu 24
00810 Helsinki
info@scanreal.fi
Puh:
Näytä puhelinnumero
020 730 8830
Sopivat toimitilat yhdellä otolla!
Kartoitamme toimitilatarpeesi ja etsimme yrityksellesi parhaiten sopivat vapaat toimitilat. Koska vuokranantajat maksavat palvelumme, on tämä yrityksellesi veloituksetonta.
OTA YHTEYTTÄ - SOVI NÄYTTÖ!
Kaikki kohteemme eivät ole netissä, kerro tilatarpeesi niin kartoitamme vaihtoehdot.
Palvelumme on tilanhakijalle ilmainen
