Vuokrataan toimistotilat - Helsinki
Antinkatu 1, Kamppi, 00100 Helsinki #10797414
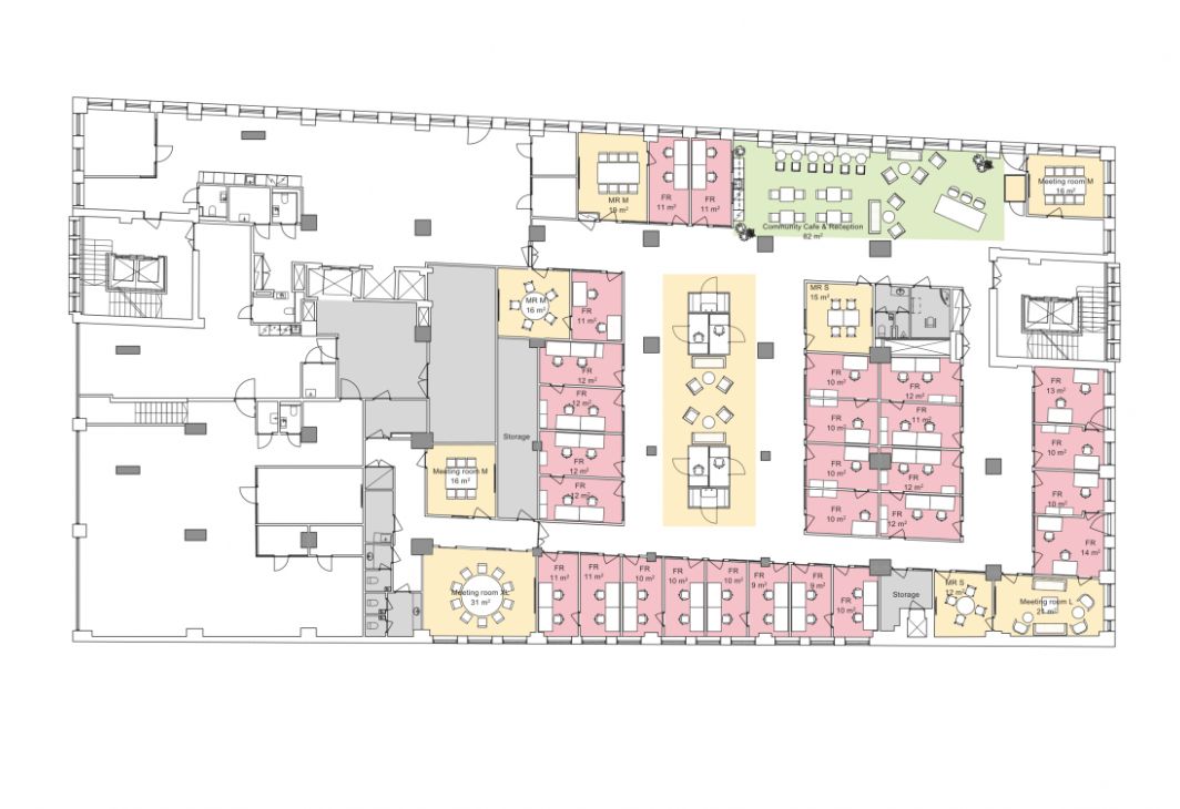
Vuokrattavana 2. kerroksen valoisaa, modernia avotoimistotilaa huippusijainnilla.
Osoite
Antinkatu 1, 00100 Helsinki
Tilatyyppi
Toimistotilaa
973 m2
Kiinteistö
Vuokrattavana 2. kerroksen erittäin valoisaa, modernia avotoimistotilaa huippusijainnilla. Tilassa on oma keittiö, erikokoiset neuvotteluhuoneet ja monimuotoiset työskentelytilat. Tehokas pohjaratkaisu mahdollistaa joustavat tilaratkaisut vuokralaisen tarpeen mukaan.
Sijainti
Kamppi, Helsinki
Palvelut
Keskustan palvelut.
Kulkuyhteydet
-Metro
-Raitiovaunu
-Bussi
-Juna
-Oma auto
-Raitiovaunu
-Bussi
-Juna
-Oma auto
Vapautuu
Heti
Kerros
2
Energiatehokkuusluokka
Ei lain edellyttämää energiatodistusta
Näkyvällä paikalla
Hissi
Ota yhteyttä
REALIUM OY LKV
Tammasaarenkatu 1, 00180 Helsinki
Vaihde:
Näytä puhelinnumero
010 326 346
Tuomo Mäkelä
tuomo.makela@realium.fi
p.
Näytä puhelinnumero
044 050 1158
Joel Keto
joel.keto@realium.fi
p.
Näytä puhelinnumero
045 317 0330
KAIKKI TILAVAIHTOEHDOT KERRALLA!
SOITA - MEILAA JA TILAA NÄYTTÖ!
Ilmainen palvelu tilanhakijoille.
Kartoitamme parhaat tilavaihtoehdot.
Kaikki kohteet eivät ole netissä.
Pyydä lisätietoa
