Vuokrataan toimistotilat - Helsinki
Erottajankatu 4, Kaartinkaupunki, 00120 Helsinki #10797412
Valoisa toisen kerroksen toimistotila Bulevardin kulmassa.
Osoite
Erottajankatu 4, 00120 Helsinki
Tilatyyppi
Toimistotilaa
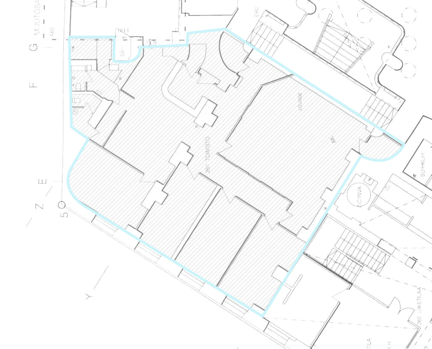
201 m2
Pohjapiirros
Kiinteistö
Avara ja hyvänkuntoinen toimistotila sijaitsee kiinteistön toisessa kerroksessa.
Nykyjaolla toimistossa on 3 huonetta, avotilaa iso lounge, keittiö sekä 2 wc:tä.
Toimistohuoneet ja avotila on erotettu toisistaan joko ikkuna-, tai lasitiiliseinällä joka luo toimistoon avaran ja valoisan tunteen.
Ikkunat aukeavat Erottajankadulle ja osin sisäpihalle.
Jäähdytetty tuloilma varmistaa mainiot työskentelyolosuhteet ympäri vuoden.
Sisäänkäynti toimistotilaan C-rapusta.
Nykyjaolla toimistossa on 3 huonetta, avotilaa iso lounge, keittiö sekä 2 wc:tä.
Toimistohuoneet ja avotila on erotettu toisistaan joko ikkuna-, tai lasitiiliseinällä joka luo toimistoon avaran ja valoisan tunteen.
Ikkunat aukeavat Erottajankadulle ja osin sisäpihalle.
Jäähdytetty tuloilma varmistaa mainiot työskentelyolosuhteet ympäri vuoden.
Sisäänkäynti toimistotilaan C-rapusta.
Sijainti
Helsingin ydinkeskusta.
Pysäköinti
Helsingin keskustan parkkitalot, lähin on Q-park Erottaja.
Palvelut
Kaikki ydinkeskustan lukuisat palvelut ovat vain kivenheiton päästä tästä kiinteistöstä.
Kulkuyhteydet
Raitiovaunupysäkki 140-370 m
Rautatientori 600 m
Kamppi 950 m
Lentokenttä 14 km
Rautatientori 600 m
Kamppi 950 m
Lentokenttä 14 km
Vapautuu
25.10.2024
Energiatehokkuusluokka
Ei lain edellyttämää energiatodistusta
Näkyvällä paikalla
Ota yhteyttä
Comreal Oy LKV
Joonas Nilsson
Näytä puhelinnumero
044 328 3425
Läkkisepänkuja 6, 00620 Helsinki
Comreal on valtakunnallinen, asiantunteva ja aktiivinen kiinteistöalan kumppani, joka palvelee sekä kiinteistönomistajia että toimitilojen käyttäjiä. Toimintamme ydin on yksinkertainen: tarjota erinomaista palvelua kaikille.
Pyydä lisätietoa
