Vuokrataan toimistotilat, tuotantotilat, varastotilat, työtilat, autotalli/-hallitilat, muut tilat - Tornio
Vesaisenkatu 1, 95400 Tornio #10797391
Vuokrataan monikäyttöinen 7 metriä korkea teollisuushallitila, jossa myös erinomaiset toimistotilat!
Osoite
Vesaisenkatu 1, 95400 Tornio
Tilatyyppi
Toimistotilaa
220 m2
Tuotantotilaa
1000 m2
Varastotilaa
1000 m2
Työtilaa
1000 m2
Autotalli/-hallitilaa
1000 m2
Muuta tilaa
1000 m2
Yhteensä
1220 m2
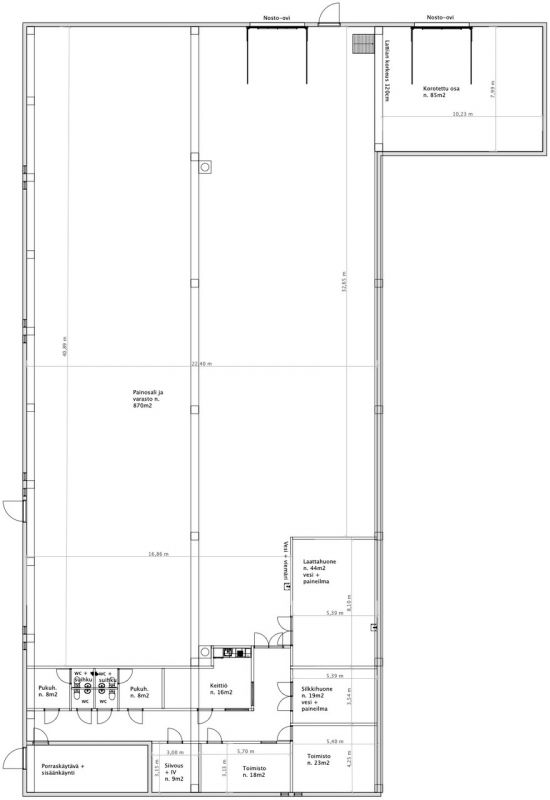
Pohjapiirros
Vuokra
6,50€/m² + alv. Lisäksi käyttösähkö ja vesi
Vuokraan sisältyy lämpö
Sijainti
Keskustan tuntumassa
Ympäristö
Ympärillä jokimaisemat
Pysäköinti
Piha-alueella runsaasti
Palvelut
Keskustan
Muuta
Tilat ovat kokonaan saaneerattu 2019. Tilat soveltuvat hyvin myös suurta sähkötehoa vaativaan tuotantoon sekä märkätiloiksi. Tehokas ilmanvaihto ja useat kohdepoistopisteet lisäävät myös käyttömahdollisuuksia. 85m²:n lastauslaituri ja korkea nosto-oví helpottavat myös toimintaa.
Toimisto-ja sos.tilat riittävät jopa 20 henkilölle. Toimistoihin tulee kuituverkko. Lisätilaa varastoinnille saat toimisto-osion päältä.
Hallitilaa mahdollista laajentaa 2000 neliöön saakka. Piha-alueelle voidaan rakentaa myös esim. pressuhalli
Toimisto-ja sos.tilat riittävät jopa 20 henkilölle. Toimistoihin tulee kuituverkko. Lisätilaa varastoinnille saat toimisto-osion päältä.
Hallitilaa mahdollista laajentaa 2000 neliöön saakka. Piha-alueelle voidaan rakentaa myös esim. pressuhalli
Lisätietoa saneerauksista
Tilat on saneerattu kokonaan
Vapautuu
01.10.2024
Rakennusvuosi
1970
Saneerausvuosi
2019
Katutasossa
Näkyvällä paikalla
Ota yhteyttä
Pohjois-Suomen Toimitilat Oy
Sepänkatu 20, 90100 Oulu
Pekka Valkola
Näytä puhelinnumero
044 311 0555
Pyydä lisätietoa
