Vuokrataan toimistotilat - Jyväskylä
Asekatu 3, 40100 Jyväskylä #10797215
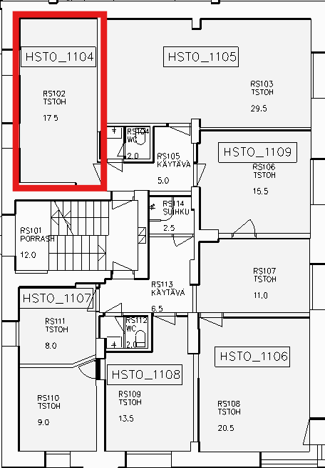
Jyväskylän Tourulassa, Kivääritehtaan alueella toimistotilaa. Huoneet 16-25 neliötä.
Osoite
Asekatu 3, 40100 Jyväskylä
Tilatyyppi
Toimistotilaa
16 - 25 m2
Pohjapiirros
Vuokra
11,30 €/m2 + alv 25,5 %
Vuokraan sisältyy sähkö, vesi, lämpö
Kiinteistö
Kivääritehtaan alueella kaksikerroksinen toimistorakennus.
Sijainti
Kivääritehtaan päärakennuksen vieressä, Jyväskylän Tourulassa.
Ympäristö
Alueelle rakennetaan asumista ja toimistotilaa lähivuosina runsaasti.
Pysäköinti
Asiakaspysäköinti ja lämpötolpallisia paikkoja vuokrattavissa.
Vapautuu
01.10.2024
Kerros
2 / 2
Hissi
Ota yhteyttä
Jykia Oy
Asekatu 3B
40100 JYVÄSKYLÄ
Minna Helsingius
Puh.
Näytä puhelinnumero
040 541 7471
Pyydä lisätietoa
