Vuokrataan varastotilat - Hyvinkää
Hakakalliontie 13, 05460 Hyvinkää #10797208
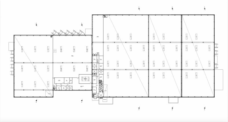
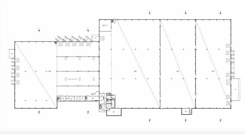
Hakakallion teollisuusalueella 15.466 m² varastokiinteistö toimistotiloineen.
Osoite
Hakakalliontie 13, 05460 Hyvinkää
Tilatyyppi
Varastotilaa
15466 m2
Kiinteistö
Hyvinkään Hakakalliontie 13 on logistiikka- ja varastokiinteistö. Kiinteistö on rakennettu vuonna 1994 ja laajennettu vuosina 1997, 2001 ja 2004. Kiinteistön pinta-ala on 15.466 m².
Rakennus muodostuu hallista ja toimisto-osasta. Kiinteistö on ollut yhden käyttäjän käytössä mutta tilat on jaettavissa myös useammalle käyttäjälle.
Kiinteistö rajautuu pohjoissivulla Hakakalliontiehen ja eteläsivulla Valtatie 25:een.
Hakakalliontie 13:n sijainti kehittyvällä alueella ja Helsinki – Hämeenlinna – Tampere -moottoritien E12 ja valtatie 25:n solmukohdassa luo erinomaiset olosuhteet palvella asiakkaita varasto- ja logistiikkatarpeissa.
Rakennus muodostuu hallista ja toimisto-osasta. Kiinteistö on ollut yhden käyttäjän käytössä mutta tilat on jaettavissa myös useammalle käyttäjälle.
Kiinteistö rajautuu pohjoissivulla Hakakalliontiehen ja eteläsivulla Valtatie 25:een.
Hakakalliontie 13:n sijainti kehittyvällä alueella ja Helsinki – Hämeenlinna – Tampere -moottoritien E12 ja valtatie 25:n solmukohdassa luo erinomaiset olosuhteet palvella asiakkaita varasto- ja logistiikkatarpeissa.
Vapautuu
Heti
Kerros
1
Energiatehokkuusluokka
Ei lain edellyttämää energiatodistusta
Katutasossa
Näkyvällä paikalla
Hissi
Lastauslaituri
Ota yhteyttä
ScanReal Oy LKV
Opus Business Park
Hitsaajankatu 24
00810 Helsinki
info@scanreal.fi
Puh:
Näytä puhelinnumero
020 730 8830
Sopivat toimitilat yhdellä otolla!
Kartoitamme toimitilatarpeesi ja etsimme yrityksellesi parhaiten sopivat vapaat toimitilat. Koska vuokranantajat maksavat palvelumme, on tämä yrityksellesi veloituksetonta.
OTA YHTEYTTÄ - SOVI NÄYTTÖ!
Kaikki kohteemme eivät ole netissä, kerro tilatarpeesi niin kartoitamme vaihtoehdot.
Palvelumme on tilanhakijalle ilmainen
Pyydä lisätietoa
