Vuokrataan toimistotilat - Oulu
Tutkijantie 9, Linnanmaa, 90590 Oulu #10797123
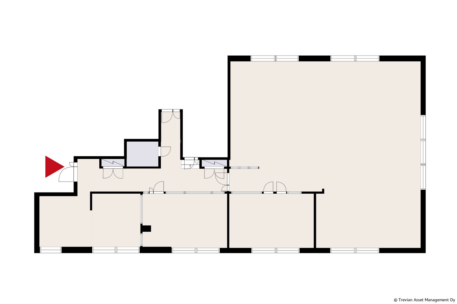
Vuokrataan toisen kerroksen toimistotila Oulun Linnanmaalla. Tila remontoidaan ja räätälöidään vuokralaisen tarpeisiin. Kiinteistö sijaitsee suositussa toimistokeskittymässä, hyvien kulkuyhteyksien varrella. Ota yhteyttä ja kysy lisätietoja!
Osoite
Tutkijantie 9, 90590 Oulu
Tilatyyppi
Toimistotilaa
305 m2
Kiinteistö
Oulun Tutkijantie 7-9
Pysäköinti
Talon pihalta on vuokrattavissa pysäköintipaikkoja.
Palvelut
Kuntosali
Muuta
Tilan ominaisuudet: avo-/kombitoimisto
Vapautuu
Heti vapaa
Kerros
2.
Ota yhteyttä
Trevian Asset Management Oy
Erottajankatu 2, 00120 Helsinki
Näytä puhelinnumero
010 581 3830
Jussi Mattila
Näytä puhelinnumero
050 307 5245
Trevian Asset Management on suomalainen toimitiloihin keskittyvä kiinteistösijoitus- ja kiinteistövarainhoitopalveluja tuottava yritys, joka toimii Suomen markkinoilla. Trevianin omistavat yrityksen avainhenkilöt.
https://trevian.fiPyydä lisätietoa
