Vuokrataan toimistotilat - Järvenpää
Minkkikatu 1-3, 04430 Järvenpää #10797108
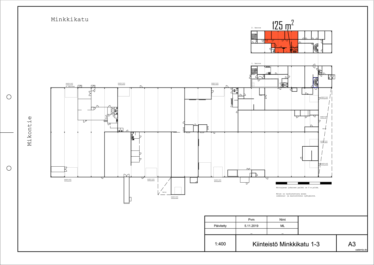
Siisti 125 m² toimisto Järvenpäässä
Osoite
Minkkikatu 1-3, 04430 Järvenpää
Tilatyyppi
Toimistotilaa
125 m2
Pohjapiirros
Kiinteistö
Kiinteistön toisessa kerroksessa toimistohuoneita, neuvottelutila, aula, keittiö ja wc:t. Koneellinen ilmanvaihto.
Matkaajan hallina tunnettu kiinteistö on valmistunut 1980-luvulla Järvenpäähän. Se sijaitsee sujuvasti Lahdenväylän ja Vanhan Lahdentien välissä Mikonpellon teollisuusalueella. Kokonaispinta-alaltaan 5000 m²:n kokoisessa rakennuksessa on öljylämmitys. Asfaltoidulla piha-alueella riittää tilaa pysäköintiin ja vaikka yksittäisten konttien säilyttämiseen
Matkaajan hallina tunnettu kiinteistö on valmistunut 1980-luvulla Järvenpäähän. Se sijaitsee sujuvasti Lahdenväylän ja Vanhan Lahdentien välissä Mikonpellon teollisuusalueella. Kokonaispinta-alaltaan 5000 m²:n kokoisessa rakennuksessa on öljylämmitys. Asfaltoidulla piha-alueella riittää tilaa pysäköintiin ja vaikka yksittäisten konttien säilyttämiseen
Vapautuu
Heti
Kerros
2 / 2
Energiatehokkuusluokka
Ei lain edellyttämää energiatodistusta
Ota yhteyttä
ScanReal Oy LKV
Opus Business Park
Hitsaajankatu 24
00810 Helsinki
info@scanreal.fi
Puh:
Näytä puhelinnumero
020 730 8830
Sopivat toimitilat yhdellä otolla!
Kartoitamme toimitilatarpeesi ja etsimme yrityksellesi parhaiten sopivat vapaat toimitilat. Koska vuokranantajat maksavat palvelumme, on tämä yrityksellesi veloituksetonta.
OTA YHTEYTTÄ - SOVI NÄYTTÖ!
Kaikki kohteemme eivät ole netissä, kerro tilatarpeesi niin kartoitamme vaihtoehdot.
Palvelumme on tilanhakijalle ilmainen
Pyydä lisätietoa
