Vuokrataan toimistotilat - Espoo
Kattilalaaksontie 1, 02330 Espoo #10797086
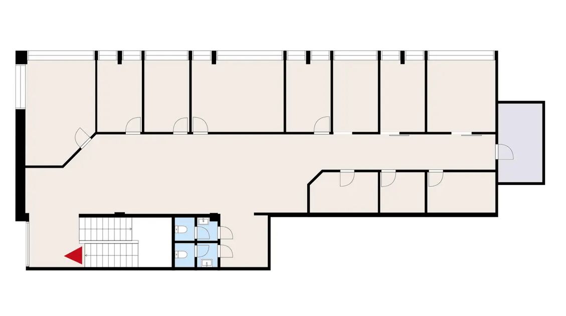
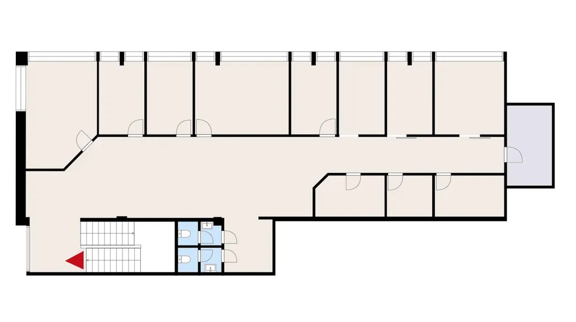
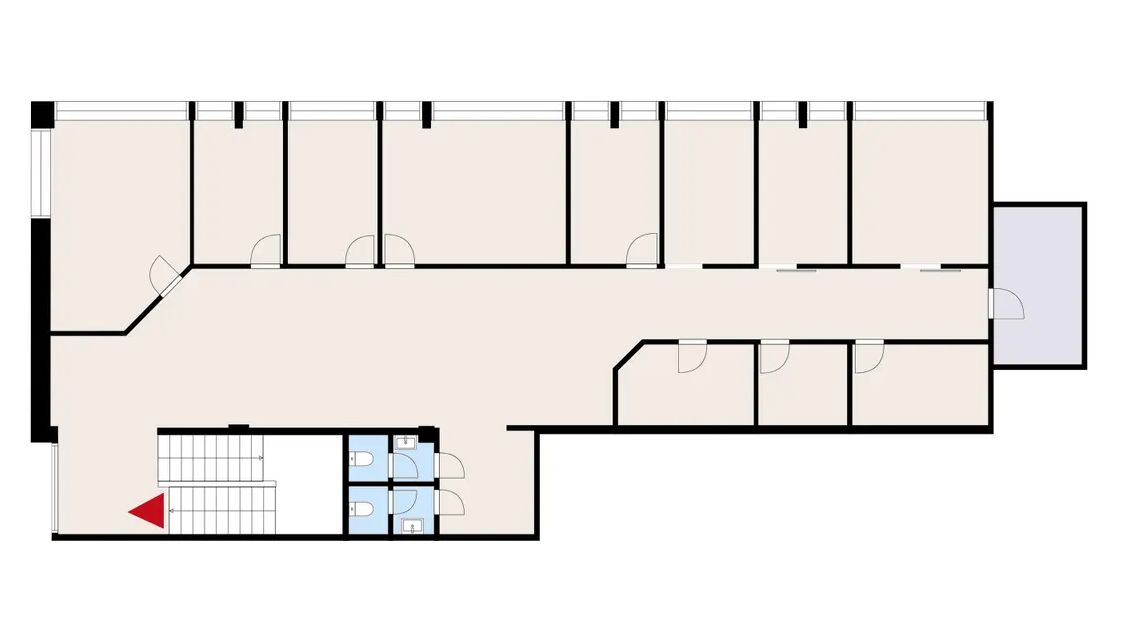
Kiviruukin yritysalueella vuokrattavana toimistotilaa.
Kattilalaaksontie 1 sijaitsee Kivenlahden yritysalueella Espoossa.
Parkkipaikkoja löytyy runsaasti pihalta.
Lisätietoja 020 7290 710. Lisää kohteita www.premises.fi
Energialuokka F2007Kerros: 2
Osoite
Kattilalaaksontie 1, 02330 Espoo
Tilatyyppi
Toimistotilaa
225 m2
Ota yhteyttä
CRE PREMISES
Puh. Näytä puhelinnumero 020 7290 710
Vantaankoskentie 14
01670 VANTAA
Pyydä lisätietoa
