Vuokrataan toimistotilat - Espoo
Piispanportti 11, Matinkylä, 02200 Espoo #10797070
Modernia loft-henkistä toimistotilaa Espoon Piispanportissa.
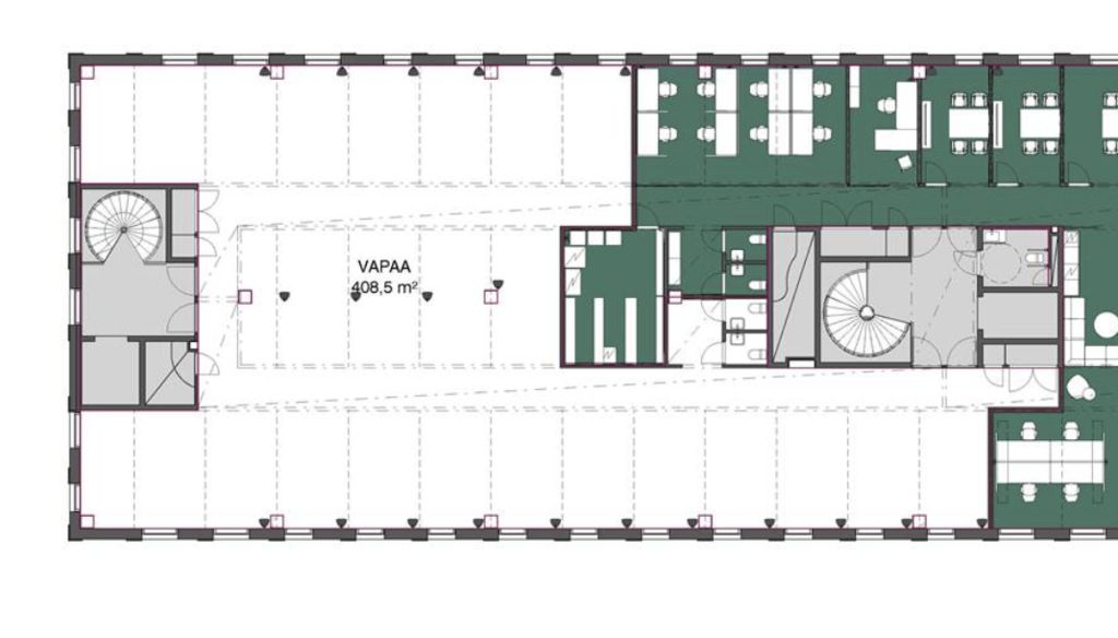
Tämä 408 m² toimistotila sijaitsee kiinteistön 5. kerroksessa. Tila on mahdollista toteuttaa avotilan ja huoneiden yhdistelmänä vuokralaisen tarpeen mukaan. Myös keittiö rakennetaan uudelle käyttäjälle. Tilan ikkunat tuovat tilaan runsaasti luonnonvaloa. Tilassa on industriaalinen ja loft-henkinen tunnelma.
Piispanportti 11 eli The Loft House on helmikuussa 2021 valmistunut moderni toimistokiinteistö Espoon Piispanportissa, kauppakeskus Iso Omenaa ja Matinkylän metroasemaa vastapäätä. Kiinteistön katutasossa sijaitsevat aula, kahvio sekä neuvottelutilat. Kerroksissa 1-6 sijaitsevat toimistotilat. Pohjakerroksessa sijaitsevat varastotilat, tekniset tilat, väestönsuoja sekä sosiaalitilat. Ylimmässä kerroksessa sijaitsee kuntosali, josta on hienot näkymät Länsiväylän suuntaan.
Kiinteistö on rakennettu kestävää kehitystä ja hyvinvointia ajatellen, WELL- ja LEED -sertifiointien mukaisesti. Moderni talotekniikka ja joustavat toimitilat varmistavat viihtyvyyden tiloissa. Kiinteistössä on 116 autopaikkaa ja runsaasti pyöräpaikkoja. Työmatkapyöräilijöille on myös omat suihku- ja pukuhuonetilat kellarikerroksessa.
Kysy lisää numerosta 044 723 4700 tai info@bref.fi. Palvelumme on tilanhakijoille ilmainen.
Bureau Real Estate Finland Oy
Lars Sonckin kaari 16, 02600 Espoo
Näytä puhelinnumero
0447234700
Bureau Real Estate Finland Oy
https://www.bref.fi