Vuokrataan varastotilat - Helsinki
Laippatie 4, Roihupelto, 00880 Helsinki #10796974
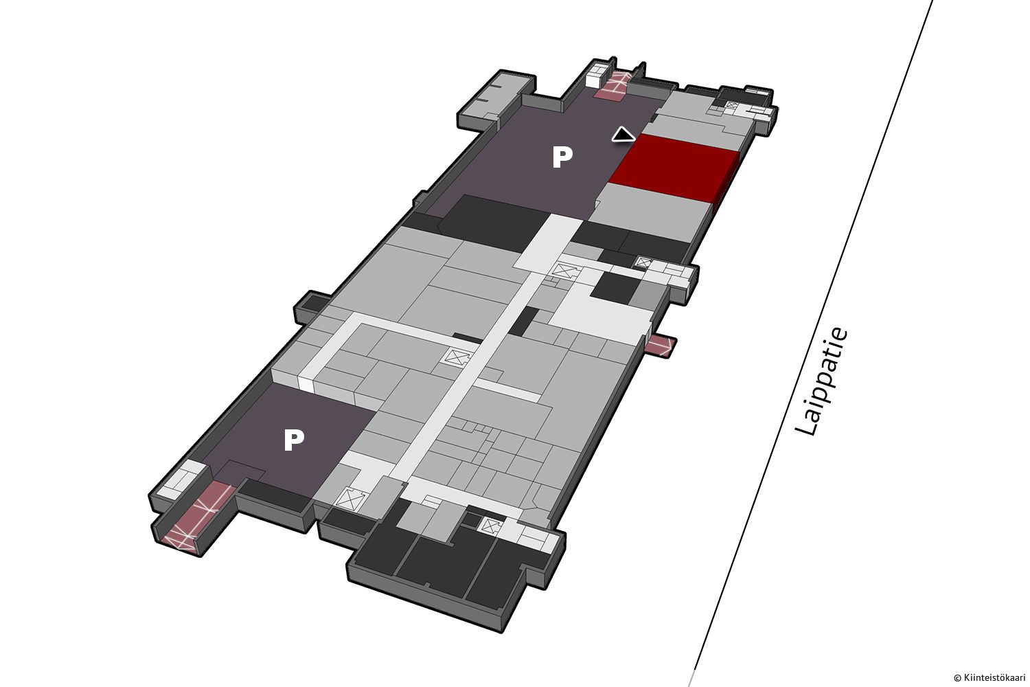
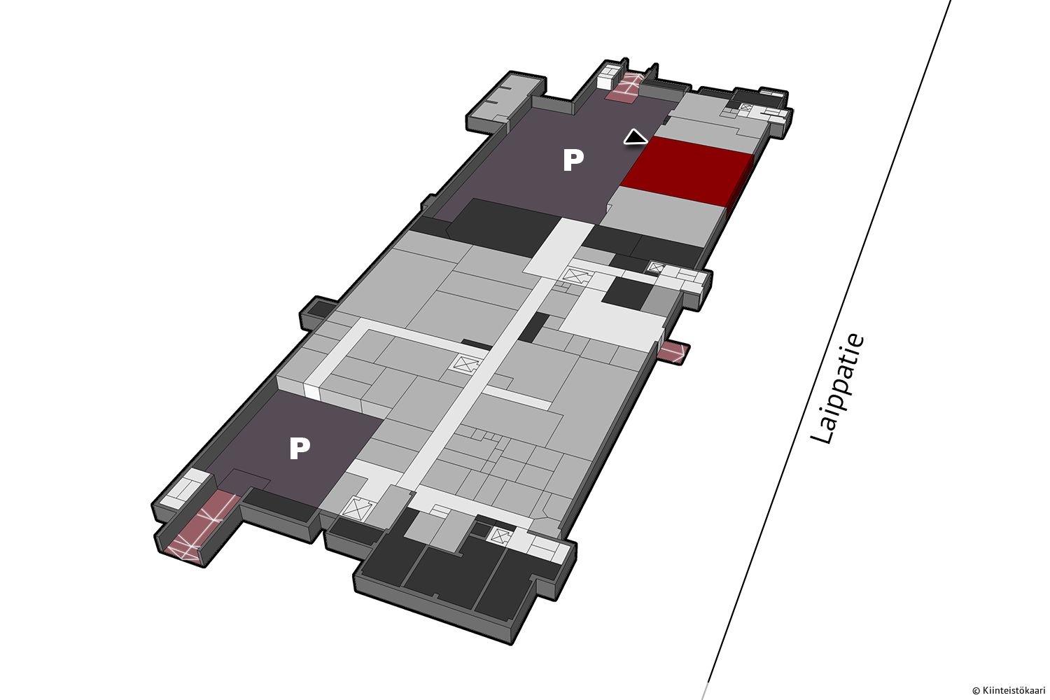
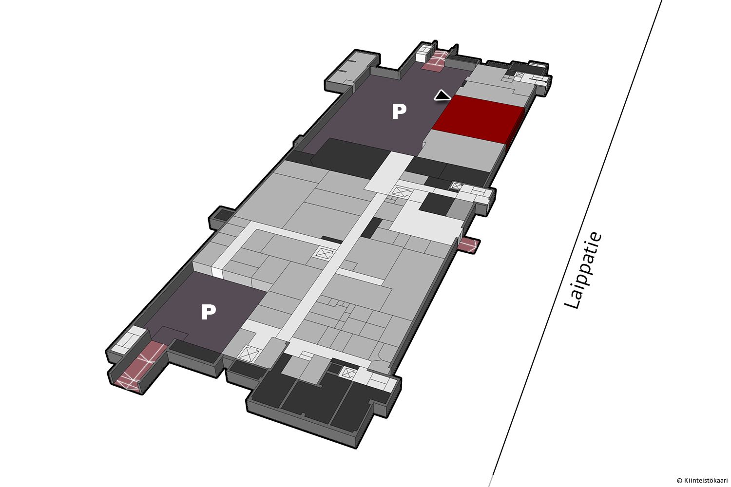
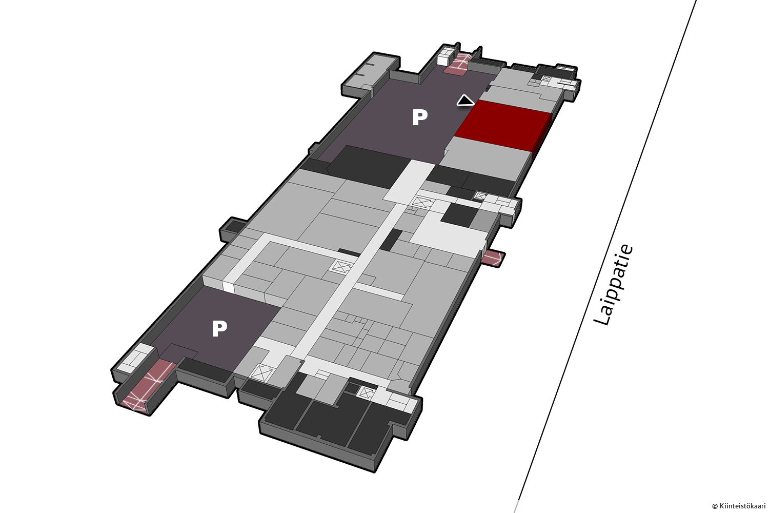
Vuokrattavissa kellarikerroksessa sijaitseva suuri varastotila. Kohteella hyvä ja helposti saavutettava sijainti Itäväylän varrella. Lähellä Herttoniemi, Viikki ja Itäkeskus kaikkine palveluineen. Ota yhteyttä ja kysy lisää!
Osoite
Laippatie 4, 00880 Helsinki
Tilatyyppi
Varastotilaa
295 m2
Kiinteistö
Helsingin Laippatie 4
Palvelut
Henkilöstöravintola, vuokrattavia neuvottelutiloja, kuntosali
Muuta
Tilan ominaisuudet:
Vapautuu
Heti vapaa
Kerros
Kellari
Ota yhteyttä
Kiinteistökaari Oy
Haapaniemenkatu 9, 00530 Helsinki
Näytä puhelinnumero
050 5050 535
Tony Tuominen
Näytä puhelinnumero
050 505 0535
Jarkko Kilpinen
Näytä puhelinnumero
0400 490 679
Kiinteistökaari Oy on kiinteistösijoitusyhtiö, joka ostaa, kehittää, myy, vuokraa ja hallinnoi laadukkaita kiinteistökohteita pääkaupunkiseudulla.
https://kiinteistokaari.fiPyydä lisätietoa
