Vuokrataan toimistotilat - Helsinki
Bulevardi 6, Keskusta, 00120 Helsinki #10796948
Arvotoimistotilaa huippusijainnilla Helsingin keskustassa
Osoite
Bulevardi 6, 00120 Helsinki
Tilatyyppi
Toimistotilaa
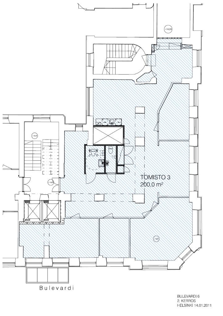
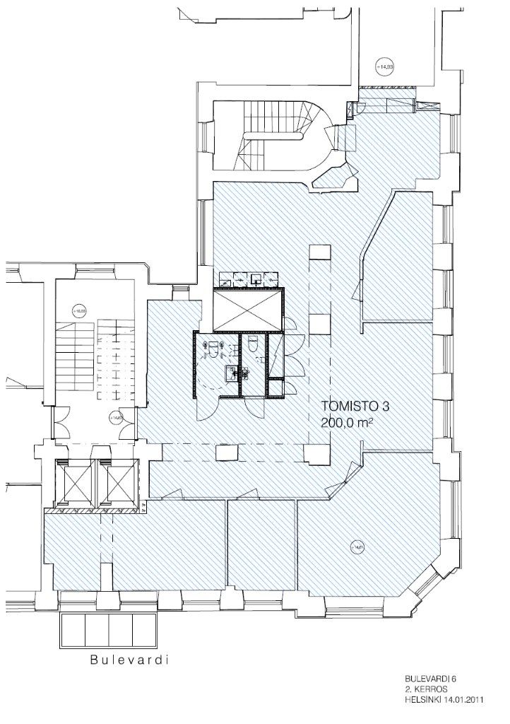
200 m2
Pysäköinti
Hallissa
Muuta
Vuokrattavana laadukas 200 m² toimistotila Helsingin ydinkeskustasta, Bulevardin kulmassa, kiinteistön 2. kerroksessa.
Tämä historiallinen, 135 vuotta vanha kiinteistö tarjoaa modernit ja toimivat liike- ja toimistotilat, ja sen kokonaispinta-ala on noin 15.000 m². Bulevardin kulma koostuu osoitteista Bulevardi 2-4-6 ja Erottajankatu 4, ja se sijaitsee yhdellä Helsingin parhaista liikepaikoista.
Sijainti on erinomainen: Helsingin Päärautatieasema on vain 650 metrin ja noin 9 minuutin kävelymatkan päässä. Keskustan palvelut, ravintolat, erikoisliikkeet ja Stockmann ovat kaikki käden ulottuvilla. Auton käyttäjille löytyy runsaasti pysäköintimahdollisuuksia, kuten aivan vieressä sijaitseva Aimo Park.
Tervetuloa tutustumaan, varaathan välittäjältä oman esittelyaikasi. Voit kysyä meiltä myös muita sopivia vaihtoehtoja, kauttamme löydät juuri Teidän tarpeisiinne sopivat tilat. Palvelumme on tilanhakijalle veloitukseton!
Tämä historiallinen, 135 vuotta vanha kiinteistö tarjoaa modernit ja toimivat liike- ja toimistotilat, ja sen kokonaispinta-ala on noin 15.000 m². Bulevardin kulma koostuu osoitteista Bulevardi 2-4-6 ja Erottajankatu 4, ja se sijaitsee yhdellä Helsingin parhaista liikepaikoista.
Sijainti on erinomainen: Helsingin Päärautatieasema on vain 650 metrin ja noin 9 minuutin kävelymatkan päässä. Keskustan palvelut, ravintolat, erikoisliikkeet ja Stockmann ovat kaikki käden ulottuvilla. Auton käyttäjille löytyy runsaasti pysäköintimahdollisuuksia, kuten aivan vieressä sijaitseva Aimo Park.
Tervetuloa tutustumaan, varaathan välittäjältä oman esittelyaikasi. Voit kysyä meiltä myös muita sopivia vaihtoehtoja, kauttamme löydät juuri Teidän tarpeisiinne sopivat tilat. Palvelumme on tilanhakijalle veloitukseton!
Vapautuu
Kysy
Rakennusvuosi
1885
Kerros
2
Ota yhteyttä
Tuloskiinteistöt Oy
Rikhardinkatu 2 B 5, 00130 Helsinki
Näytä puhelinnumero
(09) 6841 620
Jorma Ryynänen
Commercial Real Estate Advisor LKV, LVV
Näytä puhelinnumero
+358 40 708 4064
Otto Ahtola
Commercial Real Estate Advisor
Näytä puhelinnumero
+358 40 042 2830
Pyydä lisätietoa
