Vuokrataan toimistotilat - Helsinki
Bulevardi 6, Keskusta, 00120 Helsinki #10796946
Arvotoimistotilaa huippusijainnilla Helsingin keskustassa
Osoite
Bulevardi 6, 00120 Helsinki
Tilatyyppi
Toimistotilaa
107 m2
Pysäköinti
Hallissa
Muuta
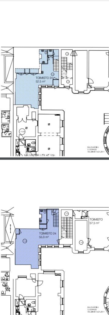
Vuokrattavana laadukas 107,50 m² toimistotila Helsingin ydinkeskustassa Bulevardin kulmassa. Tämä 1.-2. kerroksen toimistotila sijaitsee sisäpihalla, ja tilaan on oma sisäänkäynti, joka tarjoaa yritykselle yksityisyyttä ja sujuvan pääsyn.
Kiinteistö Bulevardin kulma koostuu osoitteista Bulevardi 2-4-6 ja Erottajankatu 4, ja se sijaitsee yhdellä Helsingin parhaista liikepaikoista. Historiallinen 135 vuotta vanha kiinteistö tarjoaa modernit puitteet ja yhteensä noin 15.000 m² liike- ja toimistotiloja.
Sijainti on erinomainen: Helsingin Päärautatieasema on vain 650 metrin ja noin 9 minuutin kävelymatkan päässä. Lähialueelta löytyy kattava palveluvalikoima, kuten ravintoloita, erikoisliikkeitä ja Stockmannin tavaratalo. Auton käyttäjille löytyy runsaasti pysäköintimahdollisuuksia, kuten aivan vieressä sijaitseva Aimo Park.
Tervetuloa tutustumaan, varaathan välittäjältä oman esittelyaikasi. Voit kysyä meiltä myös muita sopivia vaihtoehtoja, kauttamme löydät juuri Teidän tarpeisiinne sopivat tilat. Palvelumme on tilanhakijalle veloitukseton!
Kiinteistö Bulevardin kulma koostuu osoitteista Bulevardi 2-4-6 ja Erottajankatu 4, ja se sijaitsee yhdellä Helsingin parhaista liikepaikoista. Historiallinen 135 vuotta vanha kiinteistö tarjoaa modernit puitteet ja yhteensä noin 15.000 m² liike- ja toimistotiloja.
Sijainti on erinomainen: Helsingin Päärautatieasema on vain 650 metrin ja noin 9 minuutin kävelymatkan päässä. Lähialueelta löytyy kattava palveluvalikoima, kuten ravintoloita, erikoisliikkeitä ja Stockmannin tavaratalo. Auton käyttäjille löytyy runsaasti pysäköintimahdollisuuksia, kuten aivan vieressä sijaitseva Aimo Park.
Tervetuloa tutustumaan, varaathan välittäjältä oman esittelyaikasi. Voit kysyä meiltä myös muita sopivia vaihtoehtoja, kauttamme löydät juuri Teidän tarpeisiinne sopivat tilat. Palvelumme on tilanhakijalle veloitukseton!
Vapautuu
Kysy
Rakennusvuosi
1885
Kerros
1-2
Ota yhteyttä
Tuloskiinteistöt Oy
Rikhardinkatu 2 B 5, 00130 Helsinki
Näytä puhelinnumero
(09) 6841 620
Jorma Ryynänen
Commercial Real Estate Advisor LKV, LVV
Näytä puhelinnumero
+358 40 708 4064
Otto Ahtola
Commercial Real Estate Advisor
Näytä puhelinnumero
+358 40 042 2830
Pyydä lisätietoa
