Vuokrataan toimistotilat - Jyväskylä
Ahjokatu 22, 40320 Jyväskylä #10796880
Vuokrataan keskeiseltä ja vilkkaalta paikalta Jyväskylän Seppälästä toimistotilaa. Tila on lähellä monia palveluita ja hyvien kulkuyhteyksien varrella.
Osoite
Ahjokatu 22, 40320 Jyväskylä
Tilatyyppi
Toimistotilaa
37,5 - 94 m2
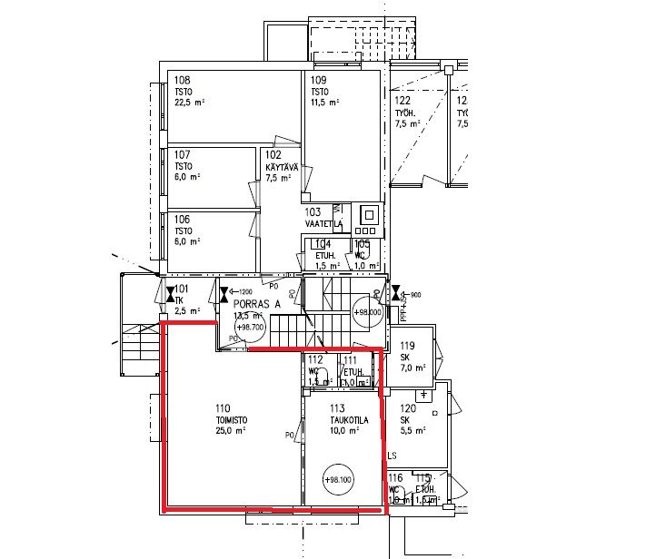
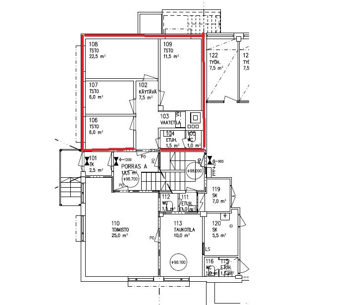
Pohjapiirros
Vuokra
Pyydä lisätiedot
Kiinteistö
Tila muodostuu 56 m2 ja 38 m2 tilasta. Isommassa tilassa on neljä toimistohuonetta ja eteinen. Pienempi tila on yhtenäistä ja juuri remontoitua tilaa, jossa on äänieristetty puhelinkoppi. Tilat yhdistettävissä vuoden vaihteessa 2024/2025 vapautuvaan n. 560 m2 liiketilaan. Kiinteistöllä hyvin pihatilaa. Alakerrassa saunaosasto ja erilaisia varastotiloja.
Lisätiedot ja näytöt: Henri Kumpulainen, Puh. 040 864 3631, s-posti. henri.kumpulainen@aveon.fi
Lisätiedot ja näytöt: Henri Kumpulainen, Puh. 040 864 3631, s-posti. henri.kumpulainen@aveon.fi
Sijainti
Monipuoliset Seppälän palvelut lähellä. Bussipysäkille n. 100 metriä. .
Lisätiedot ja näytöt: Henri Kumpulainen, Puh. 040 864 3631, s-posti. henri.kumpulainen@aveon.fi
Lisätiedot ja näytöt: Henri Kumpulainen, Puh. 040 864 3631, s-posti. henri.kumpulainen@aveon.fi
Vapautuu
Heti
Energiatehokkuusluokka
Ei lain edellyttämää energiatodistusta
Ota yhteyttä
Aveon Real Estate Oy
Kauppakatu 18 C 26, 40100 Jyväskylä
Henri Kumpulainen
Puh.
Näytä puhelinnumero
040 864 3631
henri.kumpulainen@aveon.fi
Olemme kiinteistöliiketoiminnan asiantuntija, joka toimii yrittäjämäisesti neuvonantajana kiinteistökaupoissa, toimitilavälittämisessä sekä kiinteistökehityksessä.
Asiakkaitamme ovat kotimaiset ja ulkomaiset kiinteistönomistajat, -sijoittajat sekä tilojen käyttäjät kaikkialla Suomessa.
Pyydä lisätietoa
