Vuokrataan toimistotilat - Helsinki
Ilmalantori 1, Pasila, 00240 Helsinki #10796878
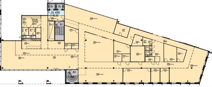
Vuokrattavana 3. kerroksen avaraa, valoisaa ja modernia toimistotilaa.
Osoite
Ilmalantori 1, 00240 Helsinki
Tilatyyppi
Toimistotilaa
852 m2
Kiinteistö
Vuokrattavana 3. kerroksen avaraa, valoisaa ja modernia toimistotilaa. Tilassa on avotila, eri kokoisia neuvottelu- ja työhuoneita, modernit keittiö-, lounge- ja wc-tilat.
Sijainti
Pasila, Helsinki
Pysäköinti
Kiinteistössä on oma lämmin pysäköintihalli, josta on vuokrattavissa pysäköintitilaa tarpeen mukaan.
Palvelut
-Aulapalvelu
-Ravintola
-Kahvila
-Vuokrattavat neuvottelutilat
-Ravintola
-Kahvila
-Vuokrattavat neuvottelutilat
Kulkuyhteydet
-Juna
-Raitiovaunu
-Bussi
-Oma auto
-Raitiovaunu
-Bussi
-Oma auto
Vapautuu
Heti
Kerros
3
Energiatehokkuusluokka
B
Näkyvällä paikalla
Hissi
Ota yhteyttä
REALIUM OY LKV
Tammasaarenkatu 1, 00180 Helsinki
Vaihde:
Näytä puhelinnumero
010 326 346
Tuomo Mäkelä
tuomo.makela@realium.fi
p.
Näytä puhelinnumero
044 050 1158
Joel Keto
joel.keto@realium.fi
p.
Näytä puhelinnumero
045 317 0330
KAIKKI TILAVAIHTOEHDOT KERRALLA!
SOITA - MEILAA JA TILAA NÄYTTÖ!
Ilmainen palvelu tilanhakijoille.
Kartoitamme parhaat tilavaihtoehdot.
Kaikki kohteet eivät ole netissä.
Pyydä lisätietoa
