Vuokrataan toimistotilat - Helsinki
Colony Vallila, Satamaradankatu 1, Vallila, 00510 Helsinki #10796800
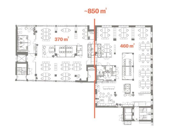
4. kerroksen toimistohuoneisto, joka on laajennettavissa yhteensä 867,5m2 asti.
Osoite
Satamaradankatu 1, 00510 Helsinki
Tilatyyppi
Toimistotilaa
460 m2
Tilajako
Jaettavissa
Muuta
COLONY VALLILA sijaitsee osoitteessa Satamaradankatu 1, keskellä Vallilan kaupunginosaa ja Helsingin kantakaupungin vanhaa teollisuusaluetta. Kokonaisuuden kolme rakennusta on rakennettu neljässä eri vaiheessa: 1920, 1929, 1934 ja 1938. Colonyn on alunperin suunnitellut arkkitehti Erkki Huttunen ja tyylisuunnaltaan rakennus edustaa funktionalismia. Kiinteistö valmistui kattavasta saneerauksesta keväällä 2020 ja tarjoaa nyt modernin toimistokokemuksen ja industrial-henkisen tunnelman.
Vallilan Konepajan teollisuusalue on runsas ravintoloiden ja baarien keskittymä, josta löytyy kymmenittäin lounaspaikkoja kuten Naughty burger, Hiku Sushi, Alice Italian, The Frogg ja Green Factory. Tämän toimiston sijainti on täydellinen myös kun haluat vaihtaa töistä vapaalle: Pistäydy työkavereiden kanssa Corona-baariin tai Vallilan Panimoon, ota matsit Bille Beinon padel-hallissa tai rentoudu Vallilan kansallisteatterin näytöksissä. Kesällä alue on täynnä erilaisia tapahtumia Train Factoryn ja Konepaja Biergartenin alueella.
Helsingin keskusta on vain vartin metromatkan päässä ja Helsinki-Vantaan lentoasemalle ajat 40 minuutissa. Kiinteistön ympärillä on useita bussi- ja raitiovaunupysäkkejä, joista lähimmät sijaitsevat aivan toimistotalon edessä. Pasilan rautatieasema on 1,5 kilometrin päässä ja Sörnäisten metroasemalle kävelee vain 10 minuutissa. Pysäköintitilaa tarjolla talon alta uudesta parkkiluolasta.
Ympäristöluokitusjärjestelmässä kohde on sertifioitu BREEAM Very Good -standardin mukaisesti.
Vallilan Konepajan teollisuusalue on runsas ravintoloiden ja baarien keskittymä, josta löytyy kymmenittäin lounaspaikkoja kuten Naughty burger, Hiku Sushi, Alice Italian, The Frogg ja Green Factory. Tämän toimiston sijainti on täydellinen myös kun haluat vaihtaa töistä vapaalle: Pistäydy työkavereiden kanssa Corona-baariin tai Vallilan Panimoon, ota matsit Bille Beinon padel-hallissa tai rentoudu Vallilan kansallisteatterin näytöksissä. Kesällä alue on täynnä erilaisia tapahtumia Train Factoryn ja Konepaja Biergartenin alueella.
Helsingin keskusta on vain vartin metromatkan päässä ja Helsinki-Vantaan lentoasemalle ajat 40 minuutissa. Kiinteistön ympärillä on useita bussi- ja raitiovaunupysäkkejä, joista lähimmät sijaitsevat aivan toimistotalon edessä. Pasilan rautatieasema on 1,5 kilometrin päässä ja Sörnäisten metroasemalle kävelee vain 10 minuutissa. Pysäköintitilaa tarjolla talon alta uudesta parkkiluolasta.
Ympäristöluokitusjärjestelmässä kohde on sertifioitu BREEAM Very Good -standardin mukaisesti.
Vapautuu
Kysy
Rakennusvuosi
1920
Kerros
4
Jaettavissa
Ota yhteyttä
Juhola Asset Management Oy
Itsehallintokuja 4 02600 Espoo
Näytä puhelinnumero
040 4551 390
Leena Juhola
Pyydä lisätietoa
