Vuokrataan toimistotilat - Helsinki
Sörnäisten rantatie 25, Sörnäinen, 00500 Helsinki #10796719
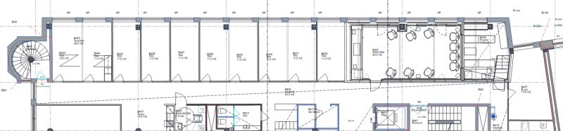
SÖRNÄISTEN RANTATIE 25 - toimistotila 327m2
Tähän 4. krs toimistotilaan astut suoraan hissistä.
Tilassa useita eri kokoisia toimistohuoneita ja neuvottelutiloja, keittiö ja wc-tila. Huonekorkeus: 3,2 m.
Lisätiedot ja kohdenäytöt: p. 040 7070 321 / HeikkiKerros: 4
Osoite
Sörnäisten rantatie 25, 00500 Helsinki
Tilatyyppi
Toimistotilaa
327 m2
Kulkuyhteydet
Metro Sörnäinen: 600 m - Raitiovaunupysäkki: 350 m (linjat: 6/7) - Bussipysäkki: rakennuksen edustalla
Ota yhteyttä
CRE PREMISES
Puh. Näytä puhelinnumero 020 7290 710
Vantaankoskentie 14
01670 VANTAA
Pyydä lisätietoa
