Vuokrataan toimistotilat, tuotantotilat - Helsinki
Sörnäisten rantatie 25, Sörnäinen, 00500 Helsinki #10796712
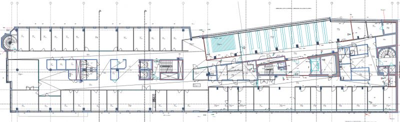
SÖRNÄISTEN RANTATIE 25 - tuotanto-/toimistotila 1460m2
Tästä 6. krs toimistotilasta on hienot merelliset näkymät Hanasaaren suuntaan. Kahdesta hissistä suoraan tilaan. Kahdesta rapusta käynnit.
Tila soveltuu toimistotilaksi, kevyeen tuotantoon/-varastointiin tai esim. laboratoriotilaksi kohdepoistojensa ansiosta.
Tilakokonaisuuteen kuuluu pieniä- ja isoja huoneita, avotilaa, neuvottelutiloja, varastokoppeja, arkistointijärjestelmällä varustettu tila, iso taukokeittiö, 4 wc-tilaa ja inva-wc.
Useissa huoneissa dB-30 ovet. TAVARAHISSI! Huonekorkeus: 2,5 m.
Lisätiedot ja kohdenäytöt: p. 040 7070 321 / HeikkiKerros: 6
CRE PREMISES
Puh. Näytä puhelinnumero 020 7290 710
Vantaankoskentie 14
01670 VANTAA
