Vuokrataan tuotantotilat - Pirkkala
Vaittintie 9, 33960 Pirkkala #10796564
Osoite
Vaittintie 9, 33960 Pirkkala
Tilatyyppi
Tuotantotilaa
150 - 540 m2
Tilajako
Jaettavissa
Muuta
Vuokrataan toimitilaa Pirkkalasta osoitteesta Vaittintie 9.
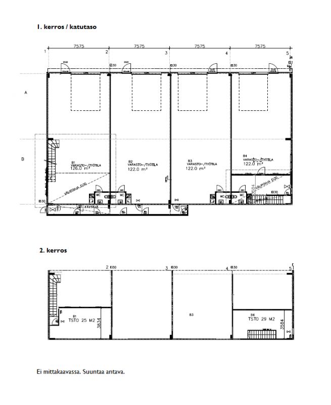
Tuotanto/varastotila katutasossa yhteensä noin 486 m2 sekä toimisto/taukotilaa 2. kerroksessa yhteensä noin 54 m2. Tilakokonaisuus koostuu neljästä noin 121 m2 hallitilasta, jotka on yhdistetty hallien väliseiniin tehdyillä oviaukoilla. Tilat on mahdollista vuokrata erikseen tai yhtenä kokonaisuutena.
Hallin vapaa korkeus noin 6,4 m. Nosto-ovet 4 kpl (3,6 m x 4,5 m), hiekanerotuskaivo, voimavirtapistorasia.
Parvella minikeittiö ja wc.
Tuotanto/varastotila katutasossa yhteensä noin 486 m2 sekä toimisto/taukotilaa 2. kerroksessa yhteensä noin 54 m2. Tilakokonaisuus koostuu neljästä noin 121 m2 hallitilasta, jotka on yhdistetty hallien väliseiniin tehdyillä oviaukoilla. Tilat on mahdollista vuokrata erikseen tai yhtenä kokonaisuutena.
Hallin vapaa korkeus noin 6,4 m. Nosto-ovet 4 kpl (3,6 m x 4,5 m), hiekanerotuskaivo, voimavirtapistorasia.
Parvella minikeittiö ja wc.
Vapautuu
Vapaa
Kerros
1
Jaettavissa
Ota yhteyttä
Catella Property Oy
Hämeenkatu 13 b, 33100 Tampere
Näytä puhelinnumero
010 5220 100
Sami Saraste
Näytä puhelinnumero
050 3014 455
Pyydä lisätietoa
