Vuokrataan toimistotilat - Helsinki
Hermannin rantatie 8, Hermanni, 00580 Helsinki #10796528
Vuokrattavana valoisaa, modernia, avaraa ja korkeaa avotoimistotilaa.
Osoite
Hermannin rantatie 8, 00580 Helsinki
Tilatyyppi
Toimistotilaa
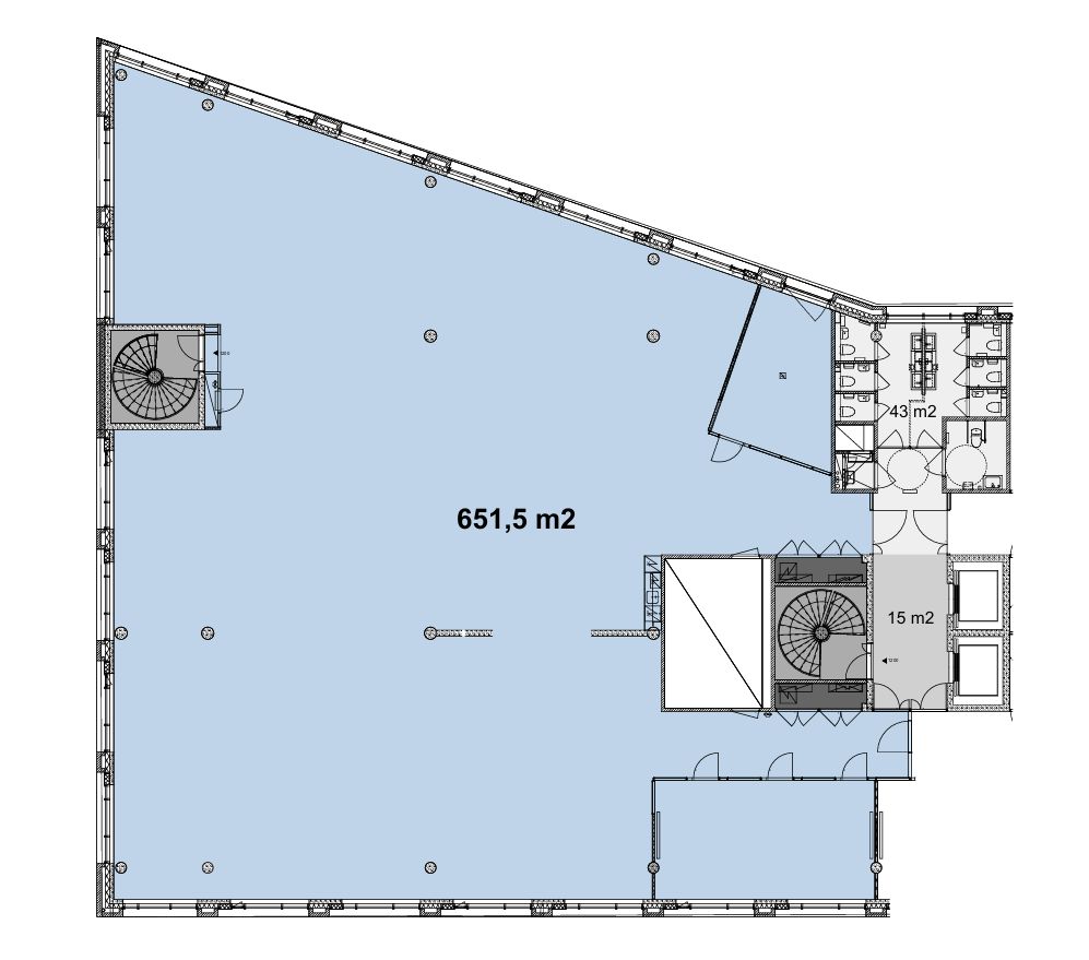
652 m2
Tilajako
382 m²/270 m²
Kiinteistö
Vuokrattavana valoisaa, modernia, avaraa ja korkeaa avotoimistotilaa. Tilassa muutama toimistohuone sekä neuvottelutila. Tilaa voidaan joustavasti muuttaa sopivammaksi asiakkaan tarpeisiin.
Sijainti
Kalasatama, Helsinki
Pysäköinti
Mahdollisuus pysäköintipaikkoihin.
Palvelut
-Aulapalvelu
-Lounasravintola
-Vuokrattavia neuvottelutiloja
-Kuntosali
-Lounasravintola
-Vuokrattavia neuvottelutiloja
-Kuntosali
Kulkuyhteydet
-Metro
-Bussi
-Oma auto
-Bussi
-Oma auto
Vapautuu
Heti
Kerros
3
Energiatehokkuusluokka
Ei lain edellyttämää energiatodistusta
Näkyvällä paikalla
Hissi
Ota yhteyttä
REALIUM OY LKV
Tammasaarenkatu 1, 00180 Helsinki
Vaihde:
Näytä puhelinnumero
010 326 346
Tuomo Mäkelä
tuomo.makela@realium.fi
p.
Näytä puhelinnumero
044 050 1158
Joel Keto
joel.keto@realium.fi
p.
Näytä puhelinnumero
045 317 0330
KAIKKI TILAVAIHTOEHDOT KERRALLA!
SOITA - MEILAA JA TILAA NÄYTTÖ!
Ilmainen palvelu tilanhakijoille.
Kartoitamme parhaat tilavaihtoehdot.
Kaikki kohteet eivät ole netissä.
Pyydä lisätietoa
