Vuokrataan - Helsinki
Panimokatu 2 A, Kalasatama, 00580 Helsinki #10796421
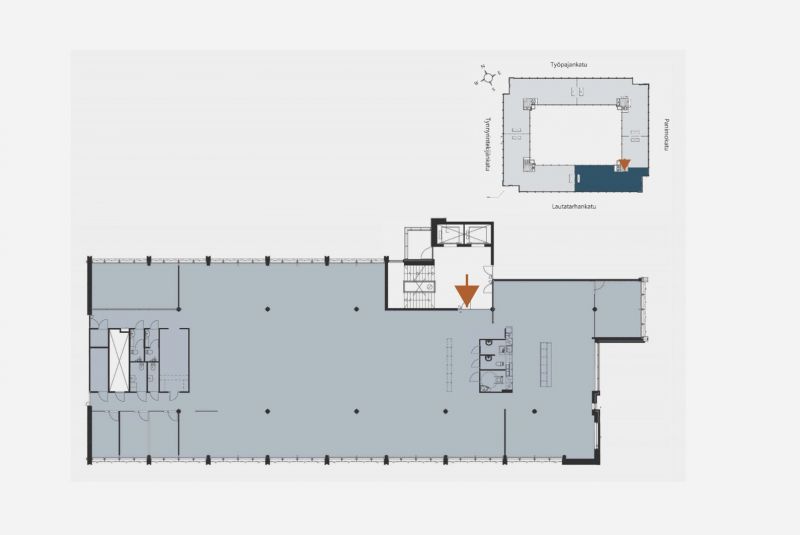
Vuokrataan upea valoisa 786m2 toimistotila, joka sijaitsee Troolin A-rapun kolmannessa kerroksessa on vuonna 2019 täysin remontoitu.
Tila on pääosin avotilaa, siinä on hieno aula ja tyylikäs keittiö. Lisäksi tilassa on toimivat neuvotteluhuoneet (3 x 2-4 hlö, 1 x 7-8 hlö, 1 x 14 hlö, 1 x 15 hlö). Ikkunoista avautuvat näkymät Suvilahteen ja kiinteistön sisäpihalle. Autopaikoitus löytyy autohallista.
Kysy lisää Jouko Raitanen Helsinki puh. 0504695444
Osoite
Panimokatu 2 A, 00580 Helsinki
Vapautuu
Kysy
Huoneiden lukumäärä
1
Energiatehokkuusluokka
Ei lain edellyttämää energiatodistusta
Ota yhteyttä
RHG Real Estate
Hämeenkatu 2 B20, 20500 Turku
Näytä puhelinnumero
020 734 4020
Jouko Raitanen
Näytä puhelinnumero
050 469 5444
Pyydä lisätietoa
