Vuokrataan toimistotilat - Espoo
Länsituuli 1, Tapiola, 02100 Espoo #10796379
Siistiä toimistotilaa Tapiolasta
Osoite
Länsituuli 1, 02100 Espoo
Tilatyyppi
Toimistotilaa
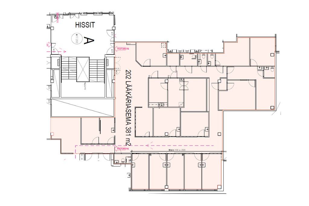
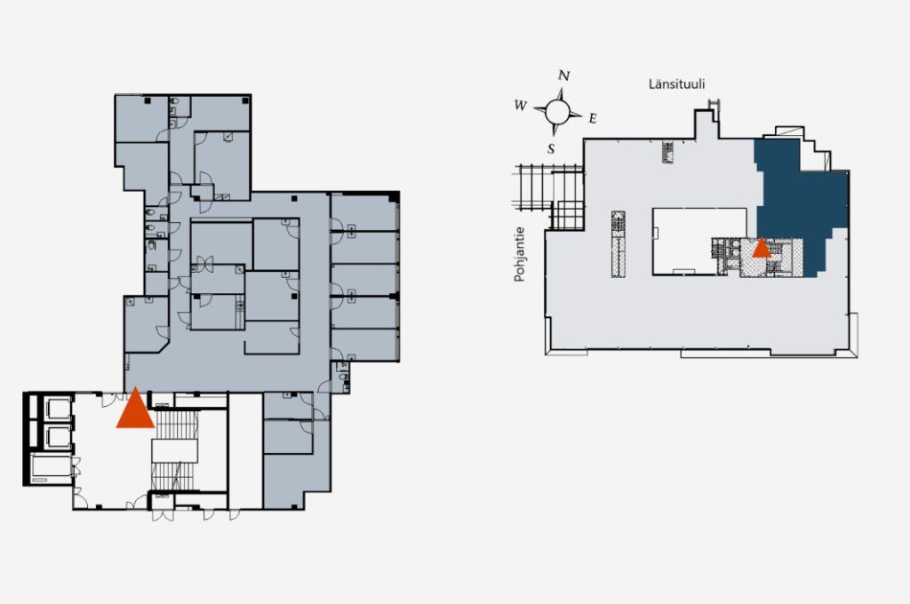
381 m2
Pysäköinti
Halli
Muuta
Vuokrataan Espoon Tapiolasta siistiä toimistotilaa. Vuokrattavan tilan pinta-ala on 381 m². Tila on laajennettavissa viereisen 986 m² tilan kanssa
Kiinteistö sijaitsee aivan Tapiolan keskustassa kauppakeskus Ainoan vieressä. Tila on aiemmin ollut lääkäriaseman käytössä. Lähettyvillä ovat bussi kuin metropysäkit.
Kiinteistöstä on mahdollisuus vuokrata hallipaikkoja Tapiolan Paikoitukselta.
Tervetuloa tutustumaan, varaathan välittäjältä oman esittelyaikasi. Voit kysyä meiltä myös muita sopivia vaihtoehtoja, kauttamme löydät juuri Teidän tarpeisiinne sopivat tilat.
Palvelumme on tilanhakijalle veloitukseton!
Kiinteistö sijaitsee aivan Tapiolan keskustassa kauppakeskus Ainoan vieressä. Tila on aiemmin ollut lääkäriaseman käytössä. Lähettyvillä ovat bussi kuin metropysäkit.
Kiinteistöstä on mahdollisuus vuokrata hallipaikkoja Tapiolan Paikoitukselta.
Tervetuloa tutustumaan, varaathan välittäjältä oman esittelyaikasi. Voit kysyä meiltä myös muita sopivia vaihtoehtoja, kauttamme löydät juuri Teidän tarpeisiinne sopivat tilat.
Palvelumme on tilanhakijalle veloitukseton!
Vapautuu
Kysy
Kerros
2
Ota yhteyttä
Tuloskiinteistöt Oy
Rikhardinkatu 2 B 5, 00130 Helsinki
Näytä puhelinnumero
(09) 6841 620
Jorma Ryynänen
Commercial Real Estate Advisor LKV, LVV
Näytä puhelinnumero
+358 40 708 4064
Nina Meyke
Commercial Real Estate Advisor
Näytä puhelinnumero
+358 50 466 1519
Pyydä lisätietoa
