Vuokrataan liiketilat - Jyväskylä
Tourukeskus, Vapaaherrantie 2, Tourula, 40100 Jyväskylä #10795891
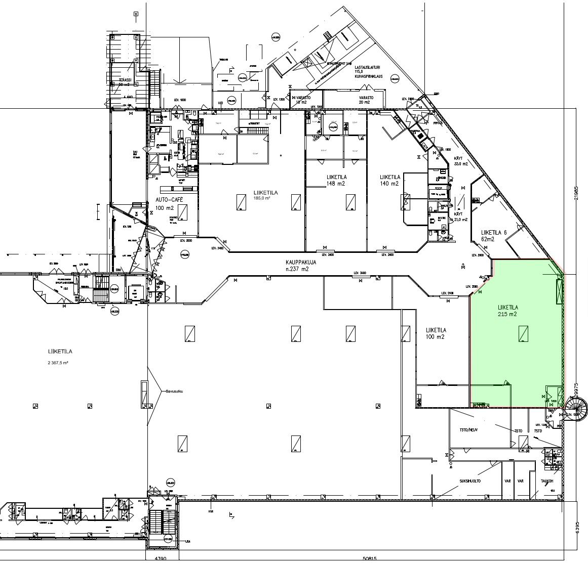
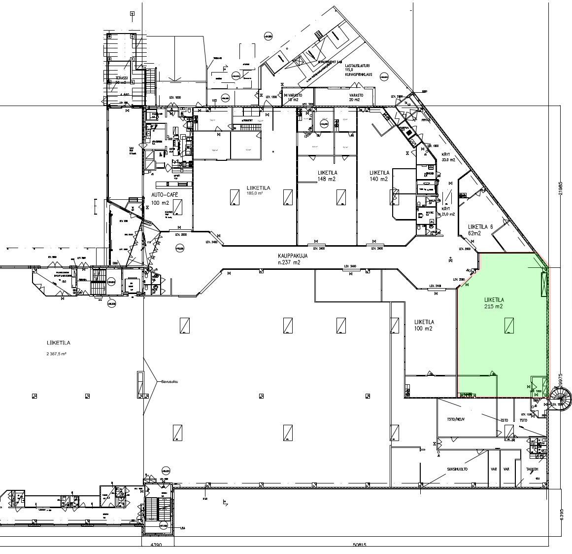
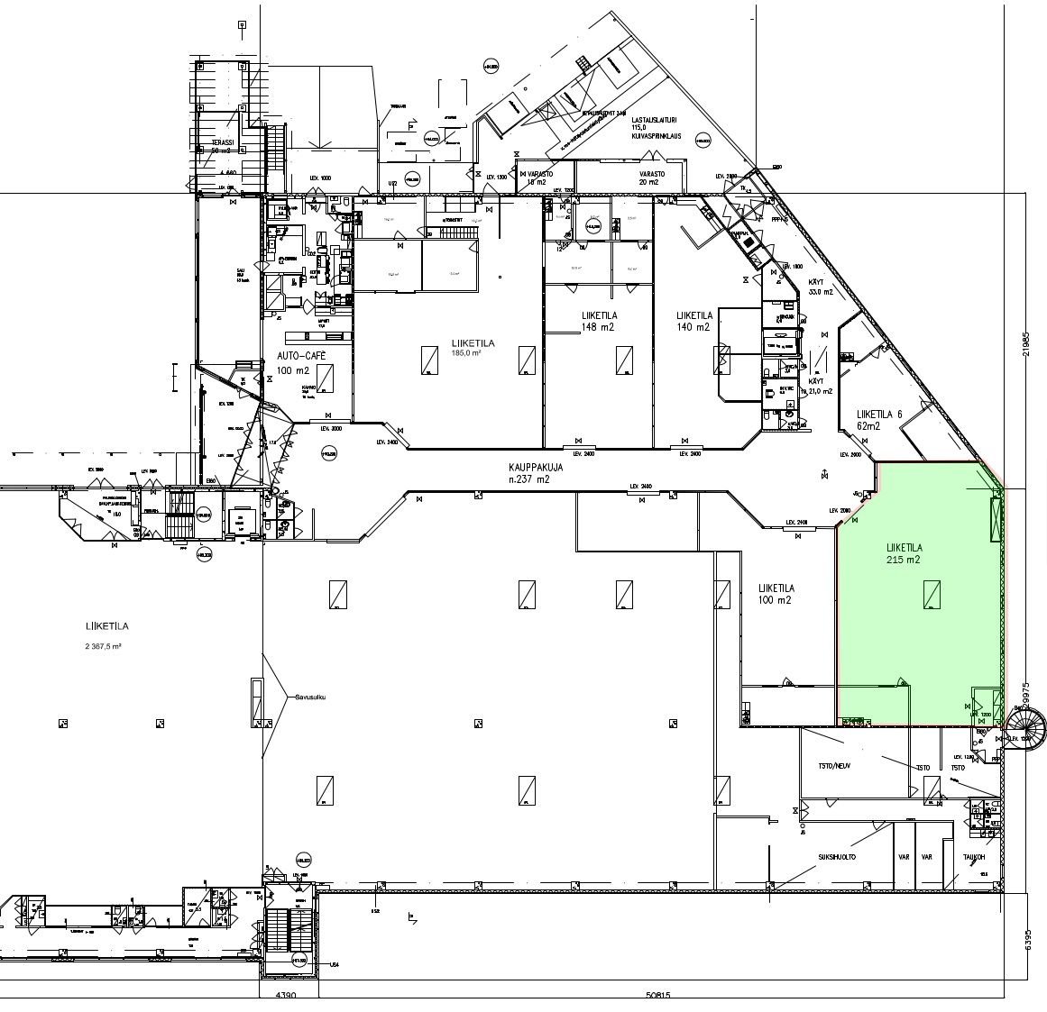
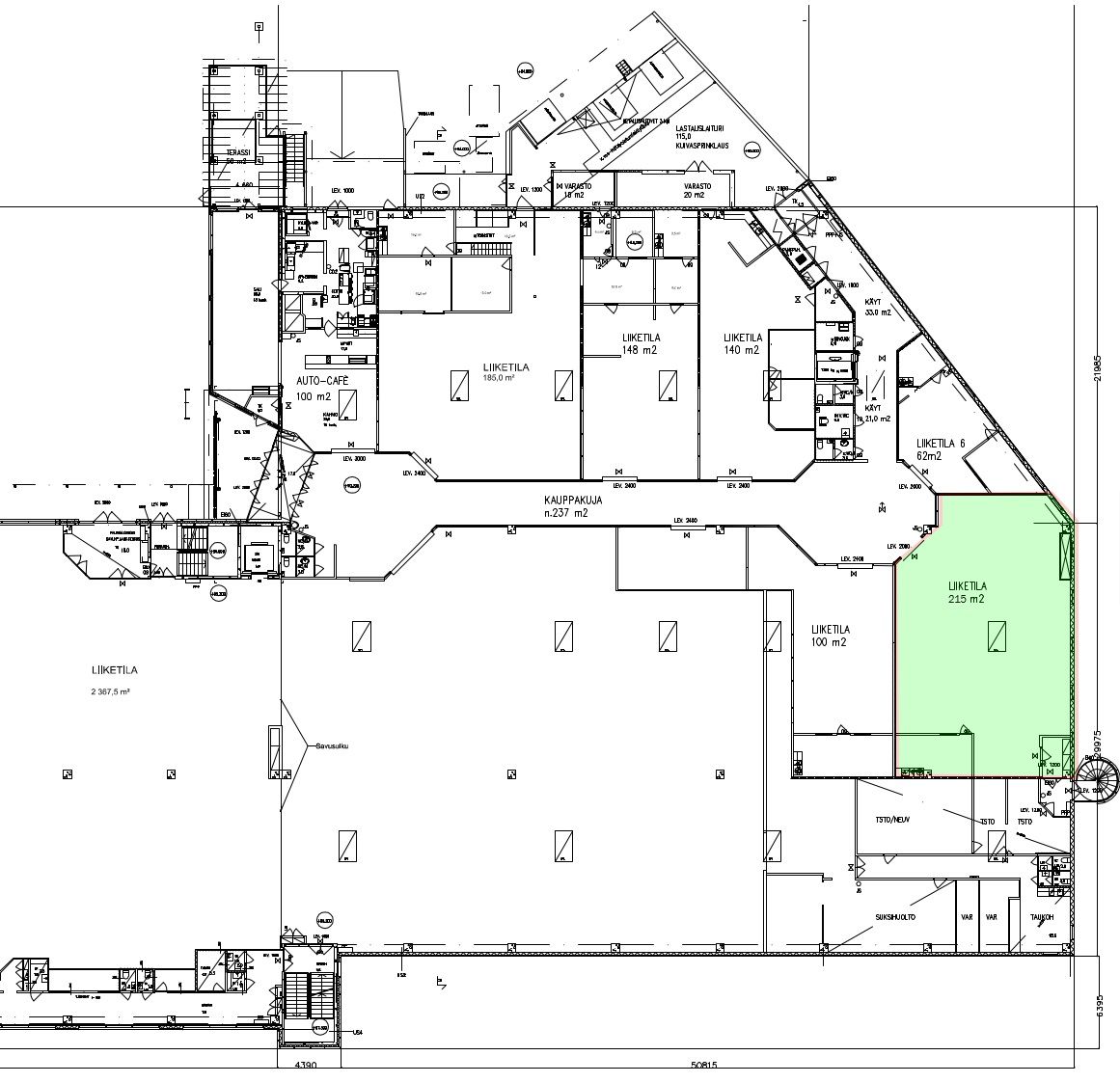
Liiketilaa Tourulasta
Osoite
Vapaaherrantie 2, 40100 Jyväskylä
Tilatyyppi
Liiketilaa
223 m2
Muuta
Vuokrattavana erinomaiselta paikalta n. 215 m2 liiketila Jyväskylän Tourukeskuksesta. Sijainti VT4/9 risteyksessä sekä yhden kaupungin sisäisen pääväylän varrella antaa erinomaisen näkyvyyden ja saavutettavuuden niin henkilökunnalle kuin asiakkaillekin.
Pihassa reilusti asiakaspaikoitustilaa. Kiinteistössä yhteiskäyttöiset sosiaalitilat (pukukaapit + suihkut).
Liiketila on heti vapaa, ota yhteyttä!
Pihassa reilusti asiakaspaikoitustilaa. Kiinteistössä yhteiskäyttöiset sosiaalitilat (pukukaapit + suihkut).
Liiketila on heti vapaa, ota yhteyttä!
Vapautuu
01.08.2024
Kerros
1
Ota yhteyttä
Infonia Oy
Kauppakatu 18 A, 40100 Jyväskylä
Näytä puhelinnumero
+358 407579731
Mikko Hirvi
Näytä puhelinnumero
+358 407579731
Pyydä lisätietoa
