Vuokrataan liiketilat - Jyväskylä
Kauppakatu 20-22, 40100 Jyväskylä #10795885
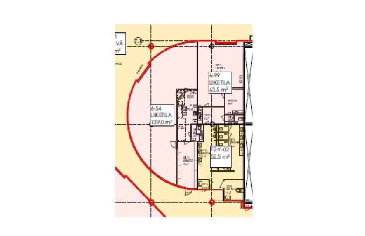
Vuokrataan kauppakeskus Forumista parturi-kampaamotila. Tila sijaitsee kauppakeskuksen toisessa kerroksessa.
Osoite
Kauppakatu 20-22, 40100 Jyväskylä
Tilatyyppi
Liiketilaa
63,5 m2
Pohjapiirros
Tila soveltuu
Parturi- ja kampaamo
Vuokra
Pyydä lisätiedot
Kiinteistö
- Valmis parturikampaamotila
- wc ja taukotila
- pieni varasto
- pesukoneliitäntä
- wc ja taukotila
- pieni varasto
- pesukoneliitäntä
Muuta
Kauppakeskus Forum:
- Yksi Jyväskylän suosituimmista ostoskohteista, n. 10 000 kävijää päivittäin
- Erinomainen sijainti kaupungin ydinkeskustassa
- Monipuoliset palvelut ja kattava valikoima myymälöitä
- Runsaat luontaiset asiakasvirrat
- Oma parkkihalli kiinteistön alla
- Kauppakeskuksen aukioloajat: Ark 9-21, La 9-18, su 12-18
Näytöt ja lisätiedot: Henri Kumpulainen, Puh. 040 864 3631, s-posti: henri.kumpulainen@aveon.fi
Vapautuu
Heti
Kerros
2
Energiatehokkuusluokka
Ei lain edellyttämää energiatodistusta
Ota yhteyttä
Aveon Real Estate Oy
Kauppakatu 18 C 26, 40100 Jyväskylä
Henri Kumpulainen
Puh.
Näytä puhelinnumero
040 864 3631
henri.kumpulainen@aveon.fi
Olemme kiinteistöliiketoiminnan asiantuntija, joka toimii yrittäjämäisesti neuvonantajana kiinteistökaupoissa, toimitilavälittämisessä sekä kiinteistökehityksessä.
Asiakkaitamme ovat kotimaiset ja ulkomaiset kiinteistönomistajat, -sijoittajat sekä tilojen käyttäjät kaikkialla Suomessa.
Pyydä lisätietoa
