Vuokrataan toimistotilat - Helsinki
Uudenmaankatu 16-20, Punavuori, 00120 Helsinki #10795286
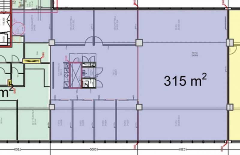
Vuokrattavana 2. kerroksen toimistotilaa keskustassa.
Osoite
Uudenmaankatu 16-20, 00120 Helsinki
Tilatyyppi
Toimistotilaa
315 m2
Kiinteistö
Vuokrattavana 2. kerroksen toimistotilaa keskustassa. Tilassa on avotila, työhuoneet, neuvottelutila, oma keittiö ja wc:t.
Sijainti
Punavuori, Helsinki
Pysäköinti
Oma parkkihalli.
Palvelut
- Lounas- ja edustusravintolat
- Kokoustilat
- Monipuoliset kaupat
- Kuntosalit
- Kokoustilat
- Monipuoliset kaupat
- Kuntosalit
Kulkuyhteydet
Hyvät kulkuyhteydet.
Vapautuu
Heti
Kerros
2
Energiatehokkuusluokka
Ei lain edellyttämää energiatodistusta
Näkyvällä paikalla
Hissi
Ota yhteyttä
REALIUM OY LKV
Tammasaarenkatu 1, 00180 Helsinki
Vaihde:
Näytä puhelinnumero
010 326 346
Tuomo Mäkelä
tuomo.makela@realium.fi
p.
Näytä puhelinnumero
044 050 1158
Joel Keto
joel.keto@realium.fi
p.
Näytä puhelinnumero
045 317 0330
KAIKKI TILAVAIHTOEHDOT KERRALLA!
SOITA - MEILAA JA TILAA NÄYTTÖ!
Ilmainen palvelu tilanhakijoille.
Kartoitamme parhaat tilavaihtoehdot.
Kaikki kohteet eivät ole netissä.
Pyydä lisätietoa
