Vuokrataan toimistotilat - Helsinki
Töölöntullinkatu 8, Meilahti, 00250 Helsinki #10795235
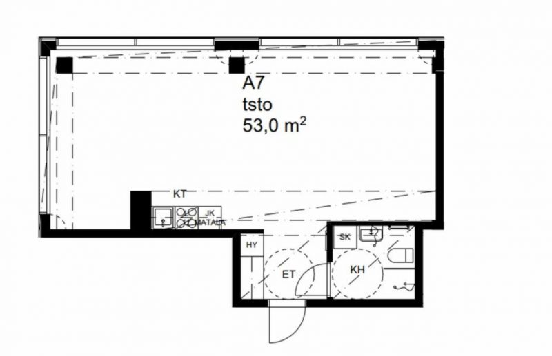
Vuokrattavana siistiä, valoisaa pientoimistotilaa, joka sijaitsee hyvällä paikalla Mannerheimintien läheisyydessä.
Osoite
Töölöntullinkatu 8, 00250 Helsinki
Tilatyyppi
Toimistotilaa
53 m2
Kiinteistö
Vuokrattavana siistiä, valoisaa pientoimistotilaa. Toimistossa on avotila, oma pieni keittiö sekä sosiaalitilat.
Sijainti
Meilahti, Helsinki
Pysäköinti
Vuokrattavat pysäköintipaikat.
Palvelut
-Kuntosali
Kulkuyhteydet
-Raitiovaunu
-Bussi
-Oma auto
-Bussi
-Oma auto
Vapautuu
Heti
Kerros
2
Energiatehokkuusluokka
Ei lain edellyttämää energiatodistusta
Näkyvällä paikalla
Hissi
Ota yhteyttä
REALIUM OY LKV
Tammasaarenkatu 1, 00180 Helsinki
Vaihde:
Näytä puhelinnumero
010 326 346
Tuomo Mäkelä
tuomo.makela@realium.fi
p.
Näytä puhelinnumero
044 050 1158
Joel Keto
joel.keto@realium.fi
p.
Näytä puhelinnumero
045 317 0330
KAIKKI TILAVAIHTOEHDOT KERRALLA!
SOITA - MEILAA JA TILAA NÄYTTÖ!
Ilmainen palvelu tilanhakijoille.
Kartoitamme parhaat tilavaihtoehdot.
Kaikki kohteet eivät ole netissä.
Pyydä lisätietoa
