Vuokrataan toimistotilat - Vaasa
Hovioikeudenpuistikko 23, 65100 Vaasa #10795228
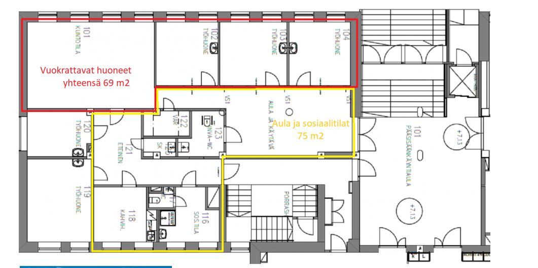
Vuokrataan tilava remontoitu toimistotila Postitalosta Vaasan ydinkeskustasta Hovioikeudenpuistikon varressa. Toimistossa kaksi erillistä työtilaa, keittiö sekä kaksi vessaa.
Lisätietoja numerosta 020 7290 710. Lisää kohteita osoitteessa www.premises.fi.
Kohteella ei ole lain edellyttämää energiatodistusta tai energialuokka ei tiedossa.Kerros: 1
Osoite
Hovioikeudenpuistikko 23, 65100 Vaasa
Tilatyyppi
Toimistotilaa
70 m2
Kulkuyhteydet
Loistavat liikenneyhteydet aivan ydinkeskustassa. Kiinteistö sijaitsee aivan juna-aseman vieressä.
Ota yhteyttä
CRE PREMISES
Puh. Näytä puhelinnumero 020 7290 710
Vantaankoskentie 14
01670 VANTAA
Pyydä lisätietoa
