Vuokrataan liiketilat, tuotantotilat, muut tilat - Turku
Riimukatu 6, 20380 Turku #10795199
Vuokrattavana siisti toimitila 592 m² / 853 m²
Osoite
Riimukatu 6, 20380 Turku
Tilatyyppi
Liiketilaa
380 m2
Tuotantotilaa
212 m2
Muuta tilaa
261 m2
Yhteensä
853 m2
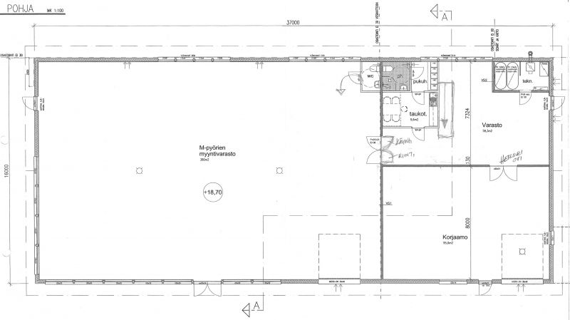
Pohjapiirros
Vuokra
Tiedustele!
Muuta
Toimitilassa on myymälä-, halli- ja korjaamotilaa.
Rakennuksen maantasakerroksen neliöt ovat n. 592 m², josta myymälän pinta-ala on n. 380 m² ja korjaamon pinta-ala on n. 212 m².
Rakennuksen parvet huomioiden kokonaispinta-ala on yhteensä n. 853 m².
Myymälän puolella on parvitilaa n. 112 m² ja lisäksi parvella on n. 25 m²:n valoisa toimistohuone. Parvella korkeus on n. 2,40 m. Myymälässä parven alla vapaa korkeus on n. 2,35 m.
Lisäksi korjaamon puolella on parvitilaa n. 119 m². Korjaamossa parven alla vapaa korkeus on n. 2,65 m.
Hallissa on 2 nosto-ovea, joiden leveys on n. 3 m ja korkeus on n. 4 m, rakennuksen sisäkorkeus on n. 5,10 m.
Lämmitys hoituu öljyllä ja lämmönjako tapahtuu vesikiertoisella lattialämmityksellä.
Rakennuksessa on runsaasti ikkunallista myymäläksi soveltuvaa tilaa.
Tilavan ja avonaisen piha-alueen lisäksi suojaisa aidattu piha-alue.
Mukava sijainti Metsämäen teollisuusalueella lähellä hyviä kulkuyhteyksiä.
Tähän kannattaa ehdottomasti tutustua!
www.kaupunki.com
Rakennuksen maantasakerroksen neliöt ovat n. 592 m², josta myymälän pinta-ala on n. 380 m² ja korjaamon pinta-ala on n. 212 m².
Rakennuksen parvet huomioiden kokonaispinta-ala on yhteensä n. 853 m².
Myymälän puolella on parvitilaa n. 112 m² ja lisäksi parvella on n. 25 m²:n valoisa toimistohuone. Parvella korkeus on n. 2,40 m. Myymälässä parven alla vapaa korkeus on n. 2,35 m.
Lisäksi korjaamon puolella on parvitilaa n. 119 m². Korjaamossa parven alla vapaa korkeus on n. 2,65 m.
Hallissa on 2 nosto-ovea, joiden leveys on n. 3 m ja korkeus on n. 4 m, rakennuksen sisäkorkeus on n. 5,10 m.
Lämmitys hoituu öljyllä ja lämmönjako tapahtuu vesikiertoisella lattialämmityksellä.
Rakennuksessa on runsaasti ikkunallista myymäläksi soveltuvaa tilaa.
Tilavan ja avonaisen piha-alueen lisäksi suojaisa aidattu piha-alue.
Mukava sijainti Metsämäen teollisuusalueella lähellä hyviä kulkuyhteyksiä.
Tähän kannattaa ehdottomasti tutustua!
www.kaupunki.com
Vapautuu
Sopimuksen mukaan, nopeastikin!
Katutasossa
Näkyvällä paikalla
Ota yhteyttä
Kaupunkikiinteistöt LKV
Tiedustelut ja esittelyt puh. Näytä puhelinnumero 0440 245 600 / Ismo Koskinen
http://www.kaupunki.comPyydä lisätietoa
