Vuokrataan toimistotilat - Helsinki
Töölönlahdenkatu 3, Keskusta, 00100 Helsinki #10795148
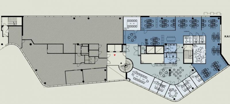
Vuokrattavana tasokasta ja modernia toimistotilaa Helsingin ydinkeskustan näköalapaikalla.
Osoite
Töölönlahdenkatu 3, 00100 Helsinki
Tilatyyppi
Toimistotilaa
621 m2
Tilajako
Jaettavissa
Kiinteistö
Vuokrattavana tasokasta ja modernia toimistotilaa Helsingin ydinkeskustan näköalapaikalla. Tilassa on työhuoneet, neuvottelutilat, taukotilat, sosiaalitilat.
Sijainti
Keskusta, Helsinki
Palvelut
-Aulapalvelu
-Henkilöstöravintola
-Henkilöstöravintola
Kulkuyhteydet
-Metro
-Raitiovaunu
-Bussi
-Juna
-Raitiovaunu
-Bussi
-Juna
Vapautuu
Heti
Kerros
3
Energiatehokkuusluokka
Ei lain edellyttämää energiatodistusta
Näkyvällä paikalla
Jaettavissa
Hissi
Ota yhteyttä
REALIUM OY LKV
Tammasaarenkatu 1, 00180 Helsinki
Vaihde:
Näytä puhelinnumero
010 326 346
Tuomo Mäkelä
tuomo.makela@realium.fi
p.
Näytä puhelinnumero
044 050 1158
Joel Keto
joel.keto@realium.fi
p.
Näytä puhelinnumero
045 317 0330
KAIKKI TILAVAIHTOEHDOT KERRALLA!
SOITA - MEILAA JA TILAA NÄYTTÖ!
Ilmainen palvelu tilanhakijoille.
Kartoitamme parhaat tilavaihtoehdot.
Kaikki kohteet eivät ole netissä.
Pyydä lisätietoa
