Vuokrataan toimistotilat - Helsinki
Meritullinkatu 1, Kruununhaka, 00170 Helsinki #10795143
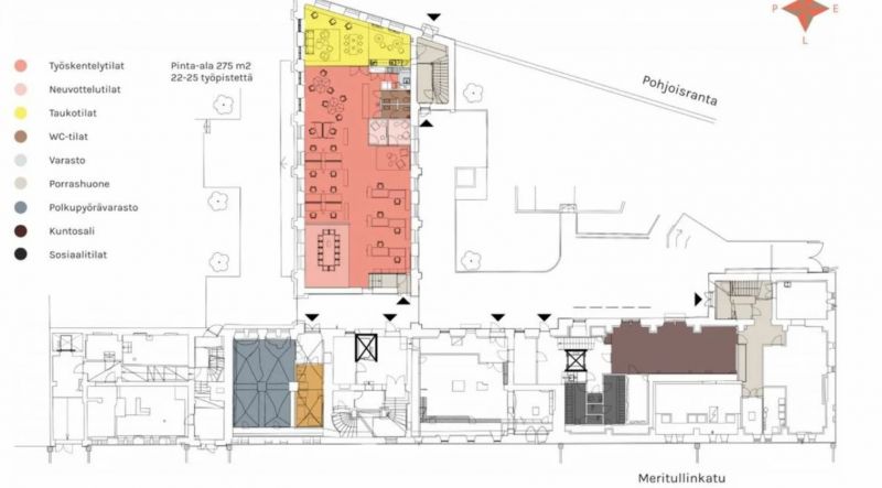
Vuokrattavana katutason upeaa, valoisaa, modernia ja viihtyisää toimistotilaa.
Osoite
Meritullinkatu 1, 00170 Helsinki
Tilatyyppi
Toimistotilaa
275 m2
Kiinteistö
Vuokrattavana upeaa, valoisaa, modernia ja viihtyisää toimistotilaa merinäköalalla. Toimistossa on avotila, työhuoneet, neuvottelutilat, taukotila ja sosiaalitilat.
Sijainti
Kruununhaka, Helsinki
Palvelut
Ydinkeskustan palvelut.
Kulkuyhteydet
-Metro
-Bussi
-Raitiovaunu
-Oma auto
-Bussi
-Raitiovaunu
-Oma auto
Vapautuu
Heti
Kerros
1
Energiatehokkuusluokka
Ei lain edellyttämää energiatodistusta
Katutasossa
Näkyvällä paikalla
Hissi
Ota yhteyttä
REALIUM OY LKV
Tammasaarenkatu 1, 00180 Helsinki
Vaihde:
Näytä puhelinnumero
010 326 346
Tuomo Mäkelä
tuomo.makela@realium.fi
p.
Näytä puhelinnumero
044 050 1158
Joel Keto
joel.keto@realium.fi
p.
Näytä puhelinnumero
045 317 0330
KAIKKI TILAVAIHTOEHDOT KERRALLA!
SOITA - MEILAA JA TILAA NÄYTTÖ!
Ilmainen palvelu tilanhakijoille.
Kartoitamme parhaat tilavaihtoehdot.
Kaikki kohteet eivät ole netissä.
Pyydä lisätietoa
