Vuokrataan liiketilat - Helsinki
Gunillatie 17, Laajasalo, 00870 Helsinki #10795047
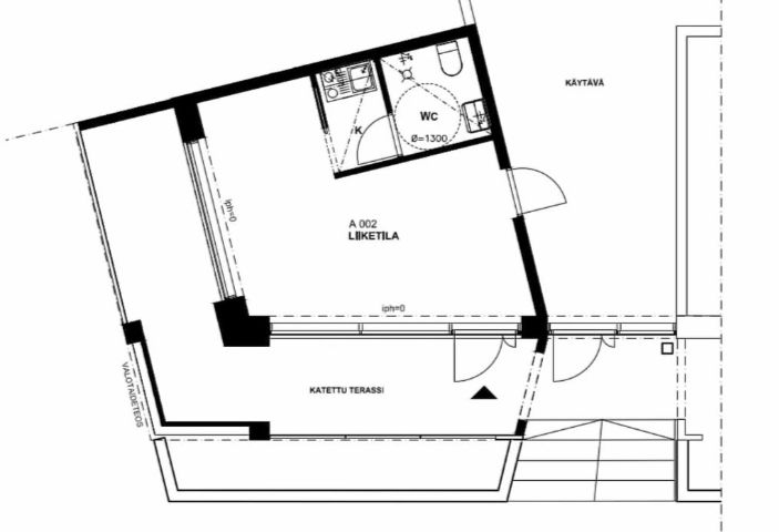
Vuokrattavana asuintalon kivijalassa sijaitseva, siistiä liiketila omalla terassilla.
Osoite
Gunillatie 17, 00870 Helsinki
Tilatyyppi
Liiketilaa
33 m2
Kiinteistö
Vuokrattavana asuintalon kivijalassa sijaitseva, siistiä liiketila omalla terassilla. Tilassa on WC sekä pieni keittiö.
Sijainti
Laajasalo, Helsinki
Pysäköinti
Autopaikkoja on viereisessä Kruunuparkissa.
Palvelut
Lähialueen palvelut.
Kulkuyhteydet
-bussi
-Oma auto
-Oma auto
Vapautuu
Heti
Kerros
1
Energiatehokkuusluokka
Ei lain edellyttämää energiatodistusta
Katutasossa
Näkyvällä paikalla
Ota yhteyttä
REALIUM OY LKV
Tammasaarenkatu 1, 00180 Helsinki
Vaihde:
Näytä puhelinnumero
010 326 346
Tuomo Mäkelä
tuomo.makela@realium.fi
p.
Näytä puhelinnumero
044 050 1158
Joel Keto
joel.keto@realium.fi
p.
Näytä puhelinnumero
045 317 0330
KAIKKI TILAVAIHTOEHDOT KERRALLA!
SOITA - MEILAA JA TILAA NÄYTTÖ!
Ilmainen palvelu tilanhakijoille.
Kartoitamme parhaat tilavaihtoehdot.
Kaikki kohteet eivät ole netissä.
Pyydä lisätietoa
