Vuokrataan toimistotilat - Helsinki
Hankasuontie 3, Konala, 00390 Helsinki #10794998
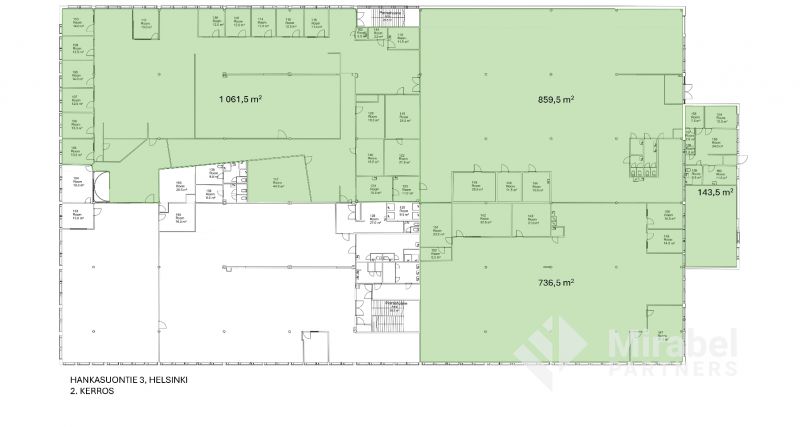
Ensimmäisen kerroksen, varastokiinteistöstä erillisessä rakennuksessa sijaitseva 143,5 m² hyvien liikenneyhteyksien varrella Konalassa
Hankasuontie 3 on toimisto-ja varastokiinteistö Helsingin Konalassa. Kiinteistö sijaitsee hyvällä paikalla Vihdintien varrella. Lähellä on muutamia lounasravintoloita sekä päivittäistavarakauppa. Kiinteistön pihalla on pysäköintitilaa.
Näkyvällä paikalla
ScanReal Oy LKV
Opus Business Park
Hitsaajankatu 24
00810 Helsinki
info@scanreal.fi
Puh:
Näytä puhelinnumero
020 730 8830
Sopivat toimitilat yhdellä otolla!
Kartoitamme toimitilatarpeesi ja etsimme yrityksellesi parhaiten sopivat vapaat toimitilat. Koska vuokranantajat maksavat palvelumme, on tämä yrityksellesi veloituksetonta.
OTA YHTEYTTÄ - SOVI NÄYTTÖ!
Kaikki kohteemme eivät ole netissä, kerro tilatarpeesi niin kartoitamme vaihtoehdot.
Palvelumme on tilanhakijalle ilmainen
