Vuokrataan toimistotilat, varastotilat - Helsinki
Hankasuontie 3, Konala, 00390 Helsinki #10794996
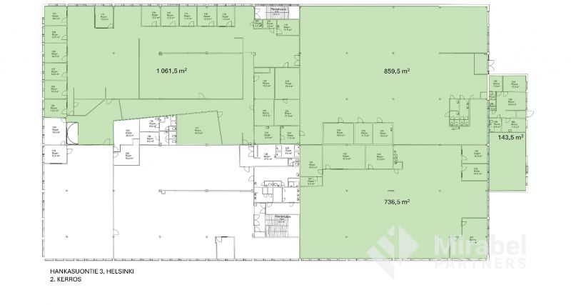
Varastoa 859,5 m² ja toimistoa 1061 m² hyvien liikenneyhteyksien varrella Konalassa
Osoite
Hankasuontie 3, 00390 Helsinki
Tilatyyppi
Toimistotilaa
1061 m2
Varastotilaa
859,5 m2
Yhteensä
1920,5 m2
Pohjapiirros
Kiinteistö
2. kerroksen tila joka koostuu 859,5 m² kokoisesta varastotilasta sekä 1061 m² kokoisesta toimistotilasta.
Varastossa on pesupiste ja omat wc-tilat. Varaston korkeus on 2,5 metriä, ja siihen johtaa yksi lastauslaituri. Toimisto koostuu huoneista ja avotilasta. Tila soveltuu myös kevyeen tuotannolliseen toimintaan.
Hankasuontie 3 on toimisto-ja varastokiinteistö Helsingin Konalassa. Kiinteistö sijaitsee hyvällä paikalla Vihdintien varrella. Lähellä on muutamia lounasravintoloita sekä päivittäistavarakauppa. Kiinteistön pihalla on pysäköintitilaa.
Varastossa on pesupiste ja omat wc-tilat. Varaston korkeus on 2,5 metriä, ja siihen johtaa yksi lastauslaituri. Toimisto koostuu huoneista ja avotilasta. Tila soveltuu myös kevyeen tuotannolliseen toimintaan.
Hankasuontie 3 on toimisto-ja varastokiinteistö Helsingin Konalassa. Kiinteistö sijaitsee hyvällä paikalla Vihdintien varrella. Lähellä on muutamia lounasravintoloita sekä päivittäistavarakauppa. Kiinteistön pihalla on pysäköintitilaa.
Pysäköinti
Pihapaikkoja
Vapautuu
Heti
Kerros
2 / 2
Energiatehokkuusluokka
Ei lain edellyttämää energiatodistusta
Ota yhteyttä
ScanReal Oy LKV
Opus Business Park
Hitsaajankatu 24
00810 Helsinki
info@scanreal.fi
Puh:
Näytä puhelinnumero
020 730 8830
Sopivat toimitilat yhdellä otolla!
Kartoitamme toimitilatarpeesi ja etsimme yrityksellesi parhaiten sopivat vapaat toimitilat. Koska vuokranantajat maksavat palvelumme, on tämä yrityksellesi veloituksetonta.
OTA YHTEYTTÄ - SOVI NÄYTTÖ!
Kaikki kohteemme eivät ole netissä, kerro tilatarpeesi niin kartoitamme vaihtoehdot.
Palvelumme on tilanhakijalle ilmainen
Pyydä lisätietoa
