Vuokrataan - Helsinki
Vääksyntie 2, Vallila, 00510 Helsinki #10794963
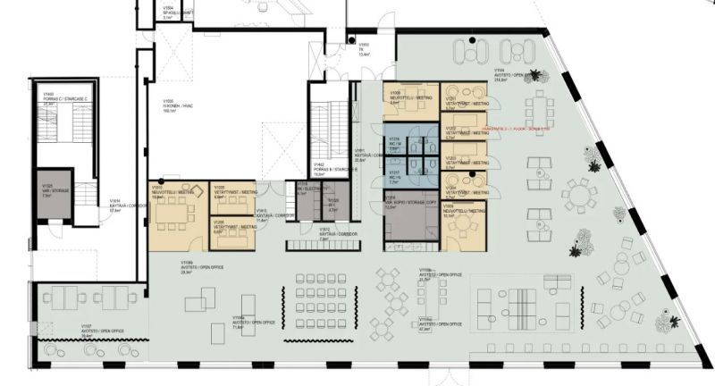
Vuokrataan ensimmäisen kerroksen laadukas 610m2 toimistotila. Laadukas aulapalvelu toimii sekä työntekijöiden että kävijöiden tukena.
Vääksy 2 -rakennus edustaa ensiluokkaista toimistosuunnittelua, jossa kestävyys yhdistyy monenlaisia käyttäjiä palvelevaan huippulaatuun. Toimitilat tarjoavat joustavia tilaratkaisuja ja ne on suunniteltu huolellisesti käyttäen laadukkaita ja kestäviä materiaaleja. Ensisijainen tavoite on tukea työntekijöiden tyytyväisyyttä.
Kiinteistön tilojen suunnittelussa on kiinnitetty erityistä huomiota työntekijöiden tyytyväisyyteen, mutta myös tilojen joustavuuteen ja materiaalien korkeaan laatuun. Työntekijät hyötyvät erinomaisista julkisista liikenneyhteyksistä, mukaan lukien lähes kaikki liikennemuodot, ja suuresta maanalaisesta pysäköintikapasiteetista, ja pääteille pääsee helposti läheltä.
Toimistovuokralaiset saavat käyttöönsä Vallila-korttelin – Pohjoismaiden johtavan toimistokompleksin – voittamattoman palveluvalikoiman. Monipuoliset ja runsaat palvelut luovat parhaat mahdolliset puitteet ensiluokkaiselle työskentelyilmapiirille, jonka veroista vaikea löytää.
Kiinteistön palvelut
Auditorio
Aulapalvelu
Catering
Hieroja
Kuntosali
Lounasravintola
Pukeutumis- ja pesutilat
Pyörävarasto
Vuokrattavia neuvottelutiloja
Kysy lisää: jouko.raitanen@rhg.fi/0504695444
RHG Real Estate
Hämeenkatu 2 B20, 20500 Turku
Näytä puhelinnumero
020 734 4020
Jouko Raitanen
Näytä puhelinnumero
050 469 5444
