Myydään toimistotilat, liiketilat, näyttelytilat, työtilat - Oulu
Torikatu 64 LH4, 90120 Oulu #10794904
Myydään siistissä kunnossa oleva liikehuoneisto, joka soveltuu useampaankin käyttöön.
Mukavuudesta huolehtii ilmalämpöpumppu.
Osoite
Torikatu 64 LH4, 90120 Oulu
Tilatyyppi
Toimistotilaa
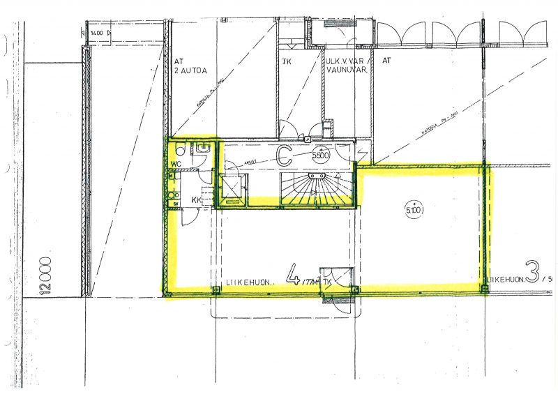
77 m2
Liiketilaa
77 m2
Näyttelytilaa
77 m2
Työtilaa
77 m2
Yhteensä
77 m2
Pohjapiirros
Myyntihinta
Velaton hinta 65.000€
Pysäköinti
Asiakkaille 2 tunnin kiekkopaikat
Kulkuyhteydet
Bussit Torikatua pitkin
Muuta
Myydään Asunto Oy Oulun Torikatu 64, 0510418-3 osakkeet 9556-9751
Vapautuu
Heti
Ota yhteyttä
Pohjois-Suomen Toimitilat Oy
Sepänkatu 20, 90100 Oulu
Pekka Valkola
Näytä puhelinnumero
044 311 0555
Pyydä lisätietoa
