Vuokrataan - Helsinki
Fabianinkatu 8, Kaartinkaupunki, 00130 Helsinki #10794879
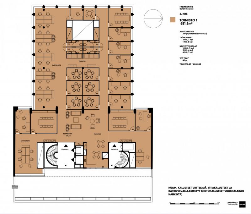
Vuokrataan toimistotilaa Fabianinkatu 8 kiinteistöstä. Kiinteistö saneerataan ja se valmistuu 2026 tammi-kesäkuun aikana. Kalustettu pohjakuva on esimerkkipohja 6. kerrokseen sovitetusta tilasta 651,5 m2. Visualisoinnit eivät ole kuvauksia yksityiskohdista tai väreistä.
Klassinen arvorakennus Fabianinkadulla kokee laajamittaisen saneerauksen. Olemassa olevan kiinteistön rakenne säilytetään ja julkisivu uudistetaan. Lisäksi rakennusta laajennetaan sisäpihan puolelle. Kiinteistöön haetaan nyt ensimmäisiä vuokralaisia. Tilat soveltuvat tasokkaaksi pääkonttoriksi, lippulaivaksi kuin myös asiantuntijoiden keitaaksi. Tarjolla on toimitilaa 2000 - 5070 m2 seitsemässä kerroksessa. Saneerauksen myötä kiinteistölle tavoitellaan korkeatasoista ympäristösertifikaattia.
Fabian 8 arvorakennusten keskellä oleva tyylikäs helmi, jonka sisällä on huippuunsa viritettyä modernia ja toimivaa talotekniikkaa. Rakentamiseen käytetään nykyajan parhaita materiaaleja, huipputalotekniikaa ja ainutlaatuista arkkitehtuuria. Uudet kattoterassit tarjoavat kaupungin kauneimmat näköalat. Kiinteistössä tarjotut palvelut tulevat tarkentumaan hankkeen edetessä. Uusiin tiloihin päästään muuttamaan arviolta H1/2026 aikana. Olkaa meihin yhteydessä niin katsotaan miten toimitilat voisivat vastata teidän tarpeitanne.
Kuvat ovat visualisointeja tulevasta kiinteistöstä. Visualisoinneissa esiintyy sisustusarkkitehtuurin ammattilaisten luomat design-teemat, joita on mahdollista hyödyntää toimistojen tilasuunnittelussa.
Kysy lisää: jouko.raitanen@rhg.fi/0504695444
RHG Real Estate
Hämeenkatu 2 B20, 20500 Turku
Näytä puhelinnumero
020 734 4020
Jouko Raitanen
Näytä puhelinnumero
050 469 5444
