Vuokrataan toimistotilat - Tampere
Klingendahl, Eteläpuisto 2C, 33200 Tampere #10794866
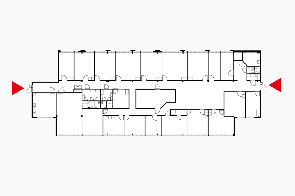
Valoisa, siisti 591 m² toimisto Eteläpuistossa
Osoite
Eteläpuisto 2C, 33200 Tampere
Tilatyyppi
Toimistotilaa
591 m2
Pohjapiirros
Kiinteistö
5. kerroksen toimistokokonaisuus, jonka kokonaispinta-ala on 591 m².
Tilat ovat siistit ja vasta remontoidut, ja huoneet ja ikkunat ovat korkeita, minkä vuoksi luonnonvaloa pääsee mukavasti sisätiloihin.
Lounaspaikkoja löytyy lähistöltä runsaasti.
Rautatieasemalle on matkaa noin 1,5 km.
Vuokrattavana 4 autohallipaikkaa. Kadun varressa talon edessä on maksullisia kadunvarsipaikkoja.
Tilat ovat siistit ja vasta remontoidut, ja huoneet ja ikkunat ovat korkeita, minkä vuoksi luonnonvaloa pääsee mukavasti sisätiloihin.
Lounaspaikkoja löytyy lähistöltä runsaasti.
Rautatieasemalle on matkaa noin 1,5 km.
Vuokrattavana 4 autohallipaikkaa. Kadun varressa talon edessä on maksullisia kadunvarsipaikkoja.
Vapautuu
Heti
Kerros
5
Energiatehokkuusluokka
Ei lain edellyttämää energiatodistusta
Ota yhteyttä
ScanReal Oy LKV
Opus Business Park
Hitsaajankatu 24
00810 Helsinki
info@scanreal.fi
Puh:
Näytä puhelinnumero
020 730 8830
Sopivat toimitilat yhdellä otolla!
Kartoitamme toimitilatarpeesi ja etsimme yrityksellesi parhaiten sopivat vapaat toimitilat. Koska vuokranantajat maksavat palvelumme, on tämä yrityksellesi veloituksetonta.
OTA YHTEYTTÄ - SOVI NÄYTTÖ!
Kaikki kohteemme eivät ole netissä, kerro tilatarpeesi niin kartoitamme vaihtoehdot.
Palvelumme on tilanhakijalle ilmainen
Pyydä lisätietoa
