Vuokrataan liiketilat - Espoo
Puolikkotie 8, Matinkylä, 02230 Espoo #10794859
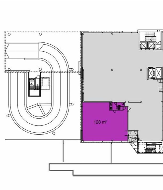
Vuokrattavana katutason siistiä toimisto-/liiketilaa.
Osoite
Puolikkotie 8, 02230 Espoo
Tilatyyppi
Liiketilaa
128 m2
Kiinteistö
Vuokrattavana katutason toimisto-/liiketilaa. Tilaan on oma sisäänkäynti.
Sijainti
Matinkylä, Espoo
Pysäköinti
Pysäköintihalli
Palvelut
-Aulapalvelu
-Henkilöstöravintola
-Kuntosali
-Vuokrattavat neuvottelutilat
-Henkilöstöravintola
-Kuntosali
-Vuokrattavat neuvottelutilat
Kulkuyhteydet
-Metro 500m
-Bussipysäkki 100m
-Juna-asema 8,4km
-Lentoasema 28,8km
-Bussipysäkki 100m
-Juna-asema 8,4km
-Lentoasema 28,8km
Vapautuu
Heti
Kerros
1
Energiatehokkuusluokka
Ei lain edellyttämää energiatodistusta
Katutasossa
Näkyvällä paikalla
Hissi
Ota yhteyttä
REALIUM OY LKV
Tammasaarenkatu 1, 00180 Helsinki
Vaihde:
Näytä puhelinnumero
010 326 346
Tuomo Mäkelä
tuomo.makela@realium.fi
p.
Näytä puhelinnumero
044 050 1158
Joel Keto
joel.keto@realium.fi
p.
Näytä puhelinnumero
045 317 0330
KAIKKI TILAVAIHTOEHDOT KERRALLA!
SOITA - MEILAA JA TILAA NÄYTTÖ!
Ilmainen palvelu tilanhakijoille.
Kartoitamme parhaat tilavaihtoehdot.
Kaikki kohteet eivät ole netissä.
Pyydä lisätietoa
