Vuokrataan - Helsinki
Tuulensuuntori 1, Hermanni, 00580 Helsinki #10794822
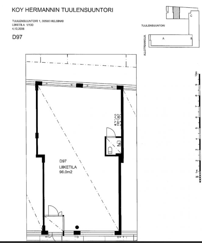
Vuokrattavana katutason liiketila (96 m2), joka soveltuu myös toimistoksi. Tila sijaitsee senioritalon kivijalassa sisäpihalla. Hyvät kulkuyhteydet ( bussipysäkki n 200 m päässä, Sörnäisten metroasema myös kivenheidon päässä).
Osoite
Tuulensuuntori 1, 00580 Helsinki
Vapautuu
Kysy
Huoneiden lukumäärä
1
Energiatehokkuusluokka
Ei lain edellyttämää energiatodistusta
Ota yhteyttä
RHG Real Estate
Hämeenkatu 2 B20, 20500 Turku
Näytä puhelinnumero
020 734 4020
Heli Reinberg
Näytä puhelinnumero
040 647 4900
Pyydä lisätietoa
