Vuokrataan toimistotilat - Helsinki
Valimotie 13, Pitäjänmäki, 00380 Helsinki #10794807
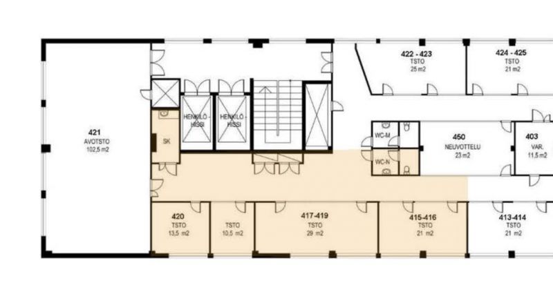
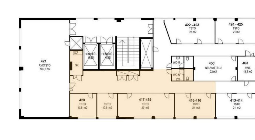
Muuntojoustavaa toimistotilaa Pitäjänmäellä.
Tämä jäähdytetty 145,5m2 toimistotila sijaitsee kiinteistön 4. kerroksessa, oma sisäänkäynti. Tila koostuu useammasta toimistohuoneesta. Oma wc. Tilat ovat muokattavissa yrityksen tarpeiden mukaan.
Valimotie 13:n tilat ovat perusteellisesti saneerattu ja tekniikka nykyaikaistettu. Tiloissa on koneellinen, jäähdytetty ilmanvaihto. Kiinteistössä on kaksi tavarahissiä ja lastausalue parkkihallissa. Lisäksi kiinteistössä on aulapalvelu ja suosittu, oma lounasravintola Factory.
Kysy lisää numerosta 044 723 4700 tai info@bref.fi. Palvelumme on tilanhakijoille ilmainen.
Hissi
Bureau Real Estate Finland Oy
Lars Sonckin kaari 16, 02600 Espoo
Näytä puhelinnumero
0447234700
Bureau Real Estate Finland Oy
https://www.bref.fi