Vuokrataan toimistotilat - Helsinki
Vattuniemenranta 2, Lauttasaari, 00210 Helsinki #10794804
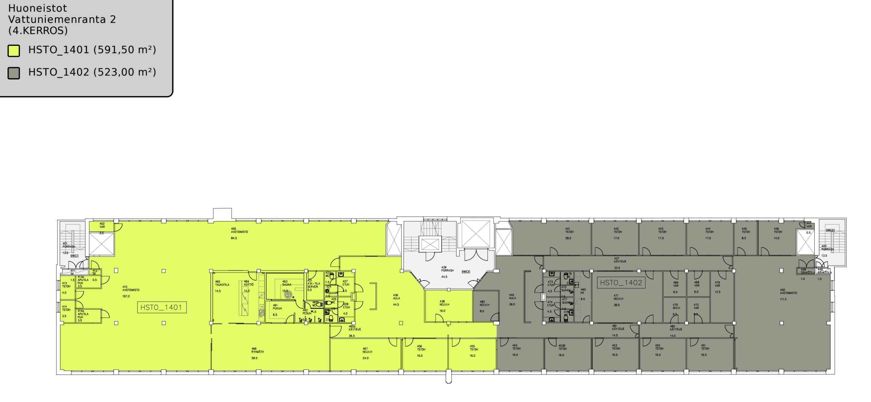
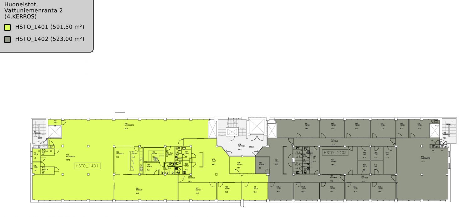
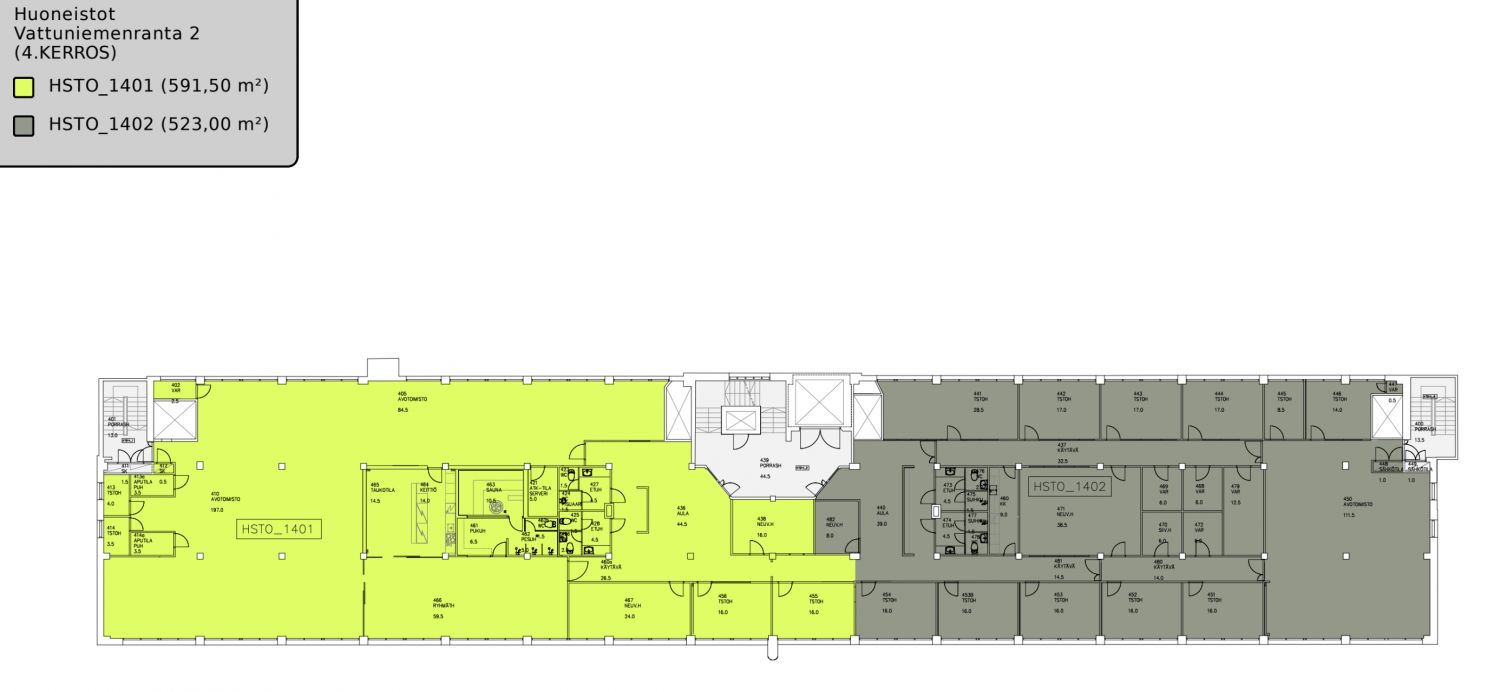
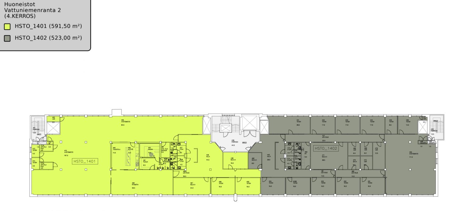
Koko kerroksen kattava erittäin monipuolinen ja viihtyisä toimistohuoneisto vastaa vaativaankin tilantarpeeseen. Monitilatoimisto koostuu sekä avotilasta että useista erikokoisista työ- ja neuvotteluhuoneista. Tilaan kuuluva oma erillinen taukotila keittiöllä tuo mukavuutta työpäiviin, kun taas työmatkapyöräilijät arvostavat kohteen suihkuja ja pukuhuonetta, vieläpä saunalla kruunattuna. Siistit omat WC-tilat kuuluvat luonnollisesti myös pakettiin. Tilaa ja tilaratkaisuja voidaan muokata laajalti vastaamaan uuden käyttäjän tarpeita, kysy lisää!
Helsingin Vattuniemenranta 2 on viihtyisä toimistotalo Lauttasaaressa. Kohteen tilat ovat joustavasti muokattavissa vuokralaisen tarpeen mukaan ja osassa kohteen tiloista on ihana merinäköala.
Croisette on uusi ja innovatiivinen toimitilojen välitysyritys Suomessa. Meillä on vahva halu auttaa teitä löytämään paras toimitilaratkaisu mahdollisimman vaivattomasti.
Huomaathan, että kaikki vapaat ja vapautuvat tilat ovat kauttamme saatavilla. Osa tiloista on hiljaisessa markkinoinnissa, mutta ottamalla meihin yhteyttä saat nekin tietoosi.
Palvelumme on tilanhakijoille täysin maksutonta.
Hissi
Croisette Real Estate Partner
Erottajankatu 5 A 6, 00130 Helsinki
Näytä puhelinnumero
+358 400 585 857
Croisette Vuokraus
Näytä puhelinnumero
+358400585857
