Vuokrataan toimistotilat - Helsinki
Vattuniemenranta 2, Lauttasaari, 00210 Helsinki #10794799
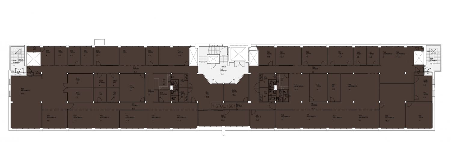
Vastaus isoon tilan tarpeeseen on tämä kokonaisen kerroksen kattava toimistotila. Näin suuresta toimistosta löytyy monia mahdollisuuksia työskentelyyn. Tila koostuu avokonttorista, jota täudentävät erikokoiset työ- ja neuvottelutilat. Tilaan kuuluu omat wc-tilat sekä taukokeittiöt.
Helsingin Vattuniemenranta 2 on viihtyisä toimistotalo Lauttasaaressa. Kohteen tilat ovat joustavasti muokattavissa vuokralaisen tarpeen mukaan ja osassa kohteen tiloista on ihana merinäköala.
Croisette on uusi ja innovatiivinen toimitilojen välitysyritys Suomessa. Meillä on vahva halu auttaa teitä löytämään paras toimitilaratkaisu mahdollisimman vaivattomasti.
Huomaathan, että kaikki vapaat ja vapautuvat tilat ovat kauttamme saatavilla. Osa tiloista on hiljaisessa markkinoinnissa, mutta ottamalla meihin yhteyttä saat nekin tietoosi.
Palvelumme on tilanhakijoille täysin maksutonta.
Hissi
Croisette Real Estate Partner
Erottajankatu 5 A 6, 00130 Helsinki
Näytä puhelinnumero
+358 400 585 857
Croisette Vuokraus
Näytä puhelinnumero
+358400585857
