Vuokrataan varastotilat - Espoo
Lautamiehentie 3, Muurala, 02770 Espoo #10794789
Vuokrattavana korkeaa, siistiä varasto-/hallitilaa.
Osoite
Lautamiehentie 3, 02770 Espoo
Tilatyyppi
Varastotilaa
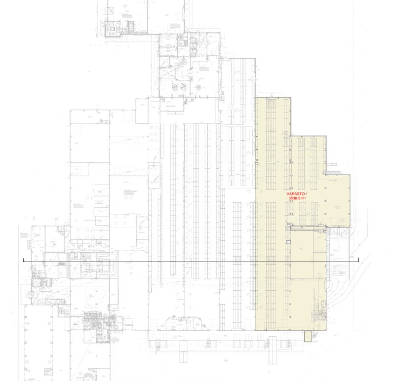
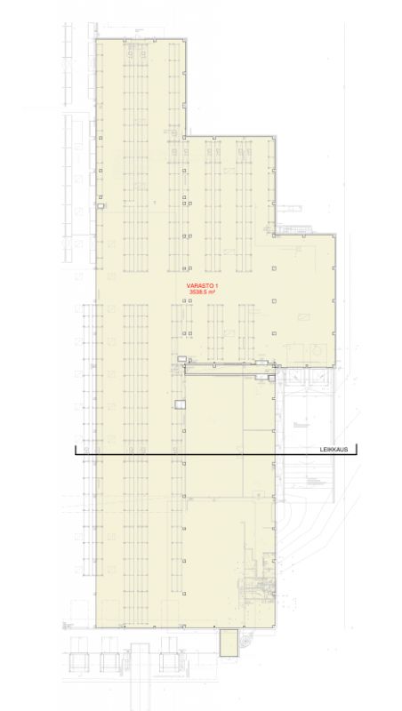
3538 m2
Tilajako
Jaettavissa
Kiinteistö
Vuokrattavana korkeaa, siistiä varasto-/hallitilaa. Toimitilan korkeus on 8-9 metriä. Isolla aidatulla pihalla tilavat kääntöpaikat rekoille, lastaustaskuja, parkkitilaa autoille. Tila soveltuu esim. mm rengasvarastokäyttöön.
Sijainti
Muurala, Espoo
Pysäköinti
Kiinteistön piha-alueella runsaasti asiakaspysäköintiin tarkoitettuja autopaikkoja.
Palvelut
-Lounasravintola
-Vuokrattavia neuvottelutiloja
-Vuokrattavia neuvottelutiloja
Kulkuyhteydet
-Bussi
-Oma auto
-Oma auto
Vapautuu
Heti
Kerros
1
Energiatehokkuusluokka
Ei lain edellyttämää energiatodistusta
Katutasossa
Näkyvällä paikalla
Jaettavissa
Ota yhteyttä
REALIUM OY LKV
Tammasaarenkatu 1, 00180 Helsinki
Vaihde:
Näytä puhelinnumero
010 326 346
Tuomo Mäkelä
tuomo.makela@realium.fi
p.
Näytä puhelinnumero
044 050 1158
Joel Keto
joel.keto@realium.fi
p.
Näytä puhelinnumero
045 317 0330
KAIKKI TILAVAIHTOEHDOT KERRALLA!
SOITA - MEILAA JA TILAA NÄYTTÖ!
Ilmainen palvelu tilanhakijoille.
Kartoitamme parhaat tilavaihtoehdot.
Kaikki kohteet eivät ole netissä.
Pyydä lisätietoa
