Vuokrataan toimistotilat - Helsinki
Hämeentie 15, Sörnäinen, 00500 Helsinki #10794752
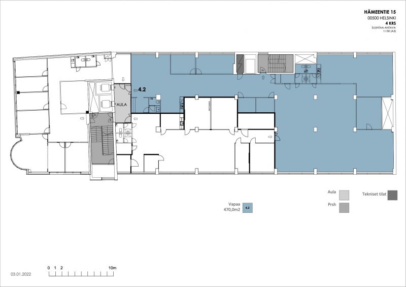
Tyylikäs 4. kerroksen, 470 m² toimisto näkyvällä paikalla Hämeentien varrella
Osoite
Hämeentie 15, 00500 Helsinki
Tilatyyppi
Toimistotilaa
470 m2
Pohjapiirros
Kiinteistö
Monitilatoimisto erinomaisella sijainnilla Helsingin Sörnäisissä. Tilassa useita erikokoisia huoneita, joka mahdollistaa monipuolisen työskentely-ympäristön.
Hämeentie 15 on vuonna 1956 rakennettu kiinteistö, jota on sittemmin 1990-luvulla laajennettu. Historiallisesti kiinnostava rakennus sijaitsee Helsingin keskustan pohjoispuolella Sörnäisissä, jossa kysyntä näkyvillä paikoilla sijaitsevista ja hyvien liikenneyhteyksien varrella olevia toimitiloja kohtaan on korkea.
Viime vuosina Helsingin kaupunki on toteuttanut mittavia uudistuksia Hämeentiellä parantaakseen julkisen ja kevyen liikenteen yhteyksiä ja samalla koko alueen houkuttelevuutta. Kehittyvällä Sörnäinen-Kalasatama-Vallila-alueella on kysyntää sekä moderneille, tehokkaille ja persoonallisille toimistotiloille.
Hämeentie 15 on vuonna 1956 rakennettu kiinteistö, jota on sittemmin 1990-luvulla laajennettu. Historiallisesti kiinnostava rakennus sijaitsee Helsingin keskustan pohjoispuolella Sörnäisissä, jossa kysyntä näkyvillä paikoilla sijaitsevista ja hyvien liikenneyhteyksien varrella olevia toimitiloja kohtaan on korkea.
Viime vuosina Helsingin kaupunki on toteuttanut mittavia uudistuksia Hämeentiellä parantaakseen julkisen ja kevyen liikenteen yhteyksiä ja samalla koko alueen houkuttelevuutta. Kehittyvällä Sörnäinen-Kalasatama-Vallila-alueella on kysyntää sekä moderneille, tehokkaille ja persoonallisille toimistotiloille.
Vapautuu
Heti
Kerros
4 / 7
Energiatehokkuusluokka
Ei lain edellyttämää energiatodistusta
Näkyvällä paikalla
Hissi
Ota yhteyttä
ScanReal Oy LKV
Opus Business Park
Hitsaajankatu 24
00810 Helsinki
info@scanreal.fi
Puh:
Näytä puhelinnumero
020 730 8830
Sopivat toimitilat yhdellä otolla!
Kartoitamme toimitilatarpeesi ja etsimme yrityksellesi parhaiten sopivat vapaat toimitilat. Koska vuokranantajat maksavat palvelumme, on tämä yrityksellesi veloituksetonta.
OTA YHTEYTTÄ - SOVI NÄYTTÖ!
Kaikki kohteemme eivät ole netissä, kerro tilatarpeesi niin kartoitamme vaihtoehdot.
Palvelumme on tilanhakijalle ilmainen
Pyydä lisätietoa
